游客:
注册
|
登录
|
会员
|
统计
|
帮助
信天谨游
»
待修建学校
» 四川省马边县永红乡团包子村小(已定,待建)
‹‹ 上一主题
|
下一主题 ››
16
1/2
1
2
››
投票
交易
悬赏
活动
打印
|
推荐
|
订阅
|
收藏
标题: 四川省马边县永红乡团包子村小(已定,待建)
信天谨游
管理员
UID 5
精华 0
积分 0
帖子 29482
阅读权限 200
注册 2007-4-3
状态 离线
#1
发表于 2013-10-19 13:07
资料
文集
短消息
四川省马边县永红乡团包子村小(已定,待建)
一、四川省马边县永红乡团包子村小简介.
四川省马边县永红乡团包子村小修建于2004年上半年,校园占地面积336平方米,其中教学用房105平方米,厕所11平方米,其余为学生活动场地面积。当时是为2004年10月份“两基”迎国检而赶时间修建的砖木结构房子,修建质量较差,至今已使用了接近10年,都呈接近危房趋势。
现有学生37名,教学班2个,一年级11人,二年级26人。教师2名(其中临聘教师1名)。按人口计算,该村小每年招生人数20-25人。学校离中心校4公里,该村小学生覆盖半径为1.5公里,即该村到中心校最远的学生的单边路程为5.5公里,一、二年级的学生每天不可能走来回11公里到中心校就读,所以该村小不能划入校点撤并规划范围。
2014年5月15日更新:
永红小学是去年考察的学校,(那里已经是危房,本学期已经不敢在那里上课,已经在借用民房上课了)。后由于乐山工商局有意捐款修建,我们没有再介入,最近,乐山工商局确定捐款数额为20万元(他们说:没有能力捐更多了),永红乡中心校曲别拉者校长请我们帮助做施工图及预算,并希望我们能够帮助解决所缺资金(他们自己没有能力补足建校款),并希望按照我们的建校模式来修建该校,我们建校(老百姓自己建学校)没有各种杂费:环评费、地勘费、施工许可、管理、设计费、税收费、招投标费、监理费、三通一平费、排污费等等费用。这样远低于教育局40多万元的预算,但教育局没列此校计划,永红乡中心校更没有能力了。
昨天周忠民又再一次到该校了解实际情况(成公交车上去,搭乘拉矿车子回来),晚上连夜做了图纸和预算……
昨晚我、周老师和教育局伍叶局长一起聊天,他一直支持我们的模式建校,和我们爬山考察学校。。对于团包子小学,他同样支持用我们的模式放手去干......
信天谨游
管理员
UID 5
精华 0
积分 0
帖子 29482
阅读权限 200
注册 2007-4-3
状态 离线
#2
发表于 2013-10-19 13:07
资料
文集
短消息
预留
信天谨游
管理员
UID 5
精华 0
积分 0
帖子 29482
阅读权限 200
注册 2007-4-3
状态 离线
#3
发表于 2013-10-19 13:08
资料
文集
短消息
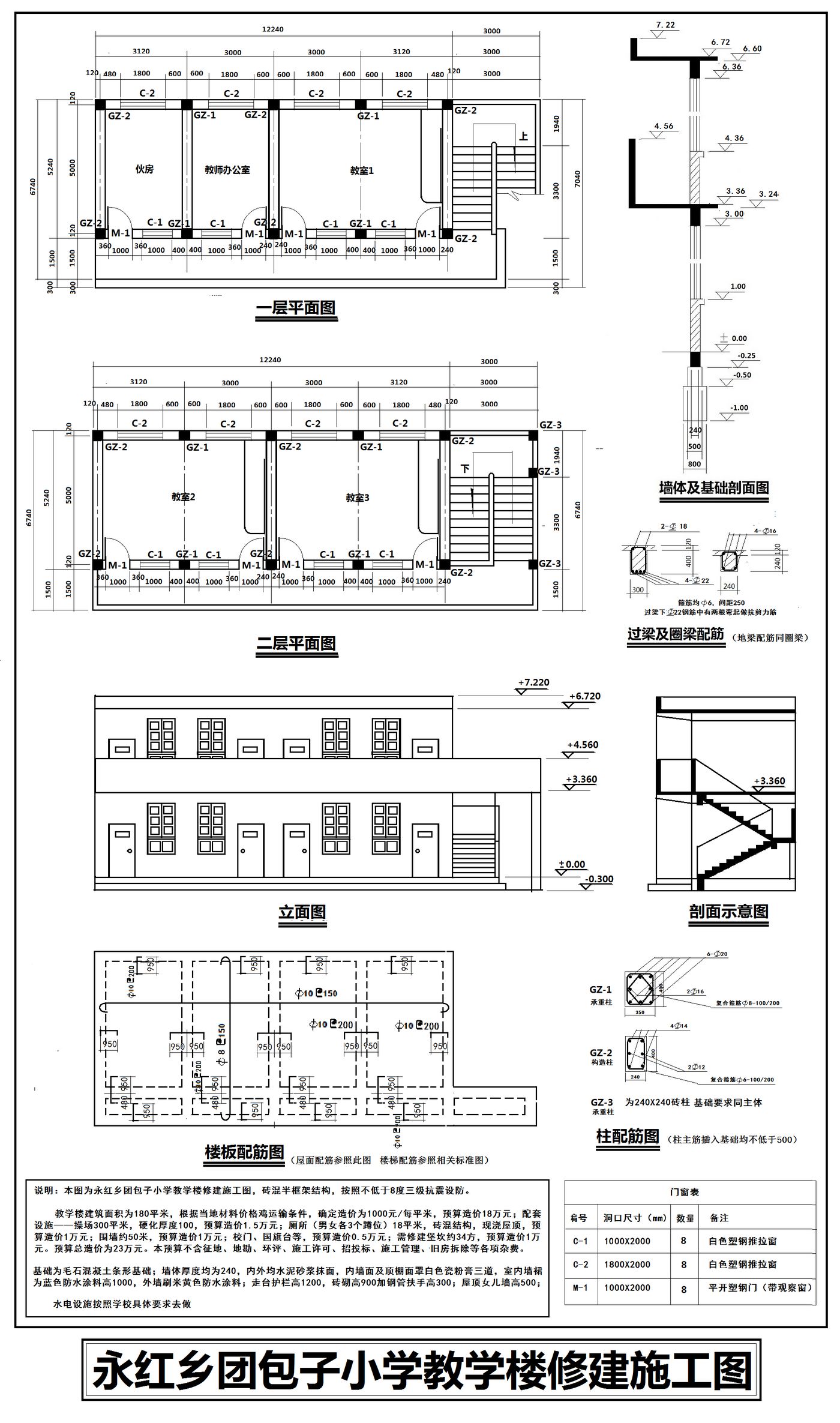
图纸和预算
图片附件
:
团包子小学教学楼施工图及修建说明-xiaotu.jpg
(2014-5-18 10:54, 484.75 K)
信天谨游
管理员
UID 5
精华 0
积分 0
帖子 29482
阅读权限 200
注册 2007-4-3
状态 离线
#4
发表于 2013-10-19 13:08
资料
文集
短消息
图纸
图片附件
:
团包子小学修建平面示意图.png
(2014-5-18 10:54, 175.29 K)
信天谨游
管理员
UID 5
精华 0
积分 0
帖子 29482
阅读权限 200
注册 2007-4-3
状态 离线
#5
发表于 2013-10-19 13:09
资料
文集
短消息
学校照片
图片附件
:
108_团包子村小 .JPG
(2013-10-19 13:09, 50.89 K)
图片附件
:
111-1_团包子村小 .JPG
(2013-10-19 13:09, 115.14 K)
图片附件
:
111-2_团包子村小.JPG
(2013-10-19 13:09, 91.84 K)
信天谨游
管理员
UID 5
精华 0
积分 0
帖子 29482
阅读权限 200
注册 2007-4-3
状态 离线
#6
发表于 2013-10-19 13:09
资料
文集
短消息
学校照片
图片附件
:
113_团包子村小.JPG
(2013-10-19 13:09, 106.62 K)
图片附件
:
114_团包子村小 .JPG
(2013-10-19 13:09, 112 K)
信天谨游
管理员
UID 5
精华 0
积分 0
帖子 29482
阅读权限 200
注册 2007-4-3
状态 离线
#7
发表于 2013-10-19 13:10
资料
文集
短消息
.
图片附件
:
116_团包子村小.JPG
(2013-10-19 13:10, 114.41 K)
信天谨游
管理员
UID 5
精华 0
积分 0
帖子 29482
阅读权限 200
注册 2007-4-3
状态 离线
#8
发表于 2013-10-19 13:12
资料
文集
短消息
.
图片附件
:
118_团包子村小 .JPG
(2013-10-19 13:12, 78.72 K)
图片附件
:
119_团包子村小.JPG
(2013-10-19 13:12, 72.45 K)
信天谨游
管理员
UID 5
精华 0
积分 0
帖子 29482
阅读权限 200
注册 2007-4-3
状态 离线
#9
发表于 2013-10-19 13:13
资料
文集
短消息
.
图片附件
:
120_团包子村小.JPG
(2013-10-19 13:13, 61.19 K)
图片附件
:
121_团包子村小 .JPG
(2013-10-19 13:13, 76.44 K)
信天谨游
管理员
UID 5
精华 0
积分 0
帖子 29482
阅读权限 200
注册 2007-4-3
状态 离线
#10
发表于 2013-10-19 13:13
资料
文集
短消息
.
图片附件
:
122_团包子村小.JPG
(2013-10-19 13:13, 63.59 K)
图片附件
:
123_团包子村小 .JPG
(2013-10-19 13:13, 59.32 K)
图片附件
:
124_团包子村小 .JPG
(2013-10-19 13:13, 121.01 K)
16
1/2
1
2
››
投票
交易
悬赏
活动
最近访问的论坛 ...
修建学校
信天谨游
信天谨游助学
> 修建学校
> 一对一资助
> 勘误表
> 山村修路
> 改善学生伙食
> 助学交流
> 待修建学校
> 预算勘误表
> 其它助学活动
> 走访资料
> 助学之友
> 学生园地
> 版务
当前时区 GMT+8, 现在时间是 2025-10-14 02:11
京ICP备07004120号
Powered by
Discuz!
5.0.0
© 2001-2006
Comsenz Inc.
TOP
清除 Cookies
-
联系我们
-
信天谨游
-
Archiver
控制面板首页
编辑个人资料
积分交易
公众用户组
好友列表
基本概况
论坛排行
主题排行
发帖排行
积分排行
在线时间
管理团队