标题: 2009年建校:四川省乐山市沐川县箭板镇箭板小学
信天谨游
管理员
Rank: 9Rank: 9Rank: 9


UID 5
精华 0
积分 0
帖子 29695
阅读权限 200
注册 2007-4-3
状态 离线
发表于 2008-7-24 17:22  资料 文集 短消息 
2009年建校:四川省乐山市沐川县箭板镇箭板小学

一、学校位置:位于四川省乐山市沐川县箭板镇,距离县城45公里,需2.5小时车程,与宜宾接壤。

二、 学校简介:
箭板镇中心完小2008年5月统计:在校学生305人,教师16人,有7个班级,包括一个学前班。
原有的教室属于危房,墙体没有钢筋。现在急需修建12间教室和学生宿舍,由于资金问题,先修建教室。修建后,附近的村小可到这里读书,预计新增学生120人左右,总的学生人数会超过420人。
顶部
信天谨游
管理员
Rank: 9Rank: 9Rank: 9


UID 5
精华 0
积分 0
帖子 29695
阅读权限 200
注册 2007-4-3
状态 离线
发表于 2008-7-24 17:28  资料 文集 短消息 
箭板小学工程预算(2008年8月25日)
编号        材料及工程施工内容        单位        数量        单价(元)        合价(元)
1.        合金窗C-1  2米*1.8米        个        24        648.00        15552.00
2.             合金窗C-2 1.2米*1.8米        个        24        388.80        9331.00
3.        防盗门M-1  1米*2米        个        24        450        10800.00
4.        砖块                       块        174000        0.55(成本0.35  一次运费0.20)    95700.00
5.        水泥425#                       吨        75        650.00        48750.00
6.        钢筋36.5 ¢8 ¢10 ¢12 ¢14¢16 ¢18 ¢20 ¢22        吨        18.8        6950.00        130660.00
7.        沙                     立方米        550        155.00        85250.00
8.        碎石                     立方米        190        140.00        26600.00
9.        毛石                     立方米        200        65.00        13000.00
10.        木头、板材                     立方米        55        900.00        49500.00
11.        扎丝                     ㎏        150        14.00        2100.00
12.        铁丝                     ㎏        150        14.00        2100.00
13.        铁钉                     件        13        155.00        2015.00
14.        国旗杆(带滑轮,钢丝绳)根        1        450.00        450.00
15.        国旗                     面        1        75.00        75.00
16.        (20㎝*40㎝)瓷砖   块         3400        6.50        22100.00
17.        黑板漆                     桶        10        45.00        450.00
18.        墙面双飞粉                     袋        180        35.00        6300.00
19.        聚乙烯胶                     ㎏        25        38.00        950.00
20.        施工费                   平方米        692.8        165.00        114312.00
21.        砖头二次运费        块        174000        0.06        10440.00
22.        水泥二次运费        吨        75        70.00        5250.00
23.        钢筋二次运费        吨        18.8        120.00        2256.00
24.        沙二次运费               立方米        550        20.00        11000.00
25.           石头二次运费        立方米        390        20.00        7800.00
26.        其他运费        吨        15        40.00        600.00
27.                                                           673341.00
28.        课桌        套        200        160.00        32000.00
29.        排水管                                1500.00
30.        水电费                                4000.00
31.        灯具电线                                8000.00
32.        另加层面防水层        平方米        320        28.00        8960.00
33.                                                             54460.00
34.        合计                                                           727801.00

其中主体工程预算:673341.00元
附属配套预算:54460.00元
两项合计:727801.00元

备注:       
箭板镇距离县城需要2.5-3小时的卡车运输路程,路途泥泞。另外材料运输到镇里后要二次搬运才能到小学,有二次运输费。
顶部
信天谨游
管理员
Rank: 9Rank: 9Rank: 9


UID 5
精华 0
积分 0
帖子 29695
阅读权限 200
注册 2007-4-3
状态 离线
发表于 2008-7-25 09:26  资料 文集 短消息 
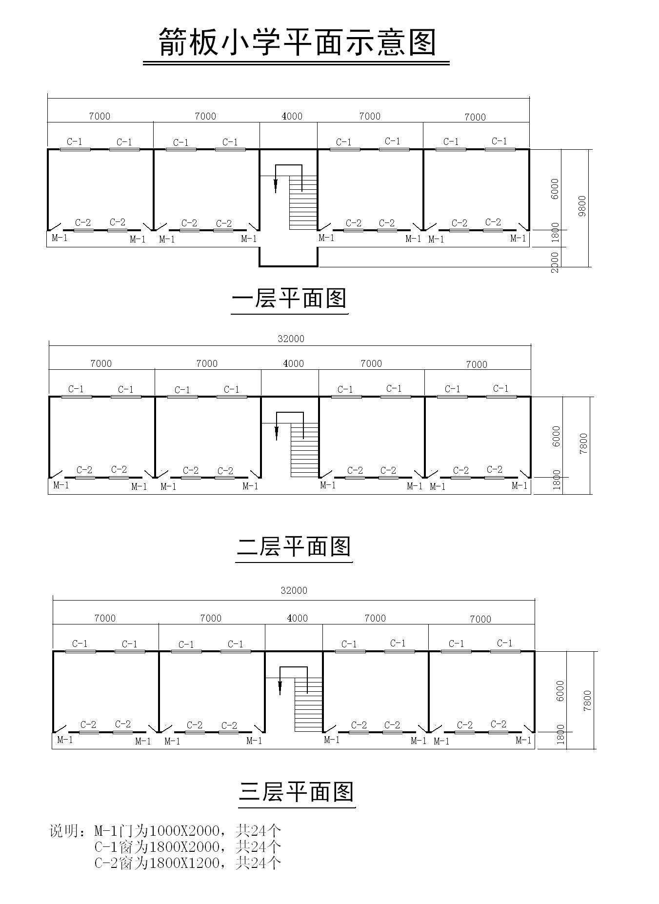
箭板小学平面示意图:


图片附件: 箭板小学平面示意图.JPG (2008-7-25 09:28, 179.27 K)

顶部
信天谨游
管理员
Rank: 9Rank: 9Rank: 9


UID 5
精华 0
积分 0
帖子 29695
阅读权限 200
注册 2007-4-3
状态 离线
发表于 2008-7-25 09:38  资料 文集 短消息 
相关照片:


图片附件: 001-遇到下雨,雇辆摩托车去学校.JPG (2008-7-25 09:39, 97.43 K)



图片附件: 002-信天在捆绑行李.JPG (2008-7-25 09:39, 99.26 K)



图片附件: 003-42公里摩托车路程.JPG (2008-7-25 09:39, 101.38 K)



图片附件: 004-穿过箭板镇的河.JPG (2008-7-25 09:39, 97.72 K)



图片附件: 005-负责施工的曹师傅.JPG (2008-7-25 09:39, 87.86 K)



图片附件: 003-沿途全是茂密的竹林.JPG (2008-7-25 11:17, 88.43 K)

顶部
信天谨游
管理员
Rank: 9Rank: 9Rank: 9


UID 5
精华 0
积分 0
帖子 29695
阅读权限 200
注册 2007-4-3
状态 离线
发表于 2008-7-25 09:40  资料 文集 短消息 
相关照片:


图片附件: 006-运输建材到小学要穿过的小路.JPG (2008-7-25 09:41, 100.12 K)



图片附件: 007-运输建材到小学要穿过的小路.JPG (2008-7-25 09:41, 98.98 K)



图片附件: 008-学校大门.JPG (2008-7-25 09:41, 93.11 K)



图片附件: 009-学校操场.JPG (2008-7-25 09:41, 82.35 K)



图片附件: 010-教室.JPG (2008-7-25 11:19, 99.65 K)

顶部
信天谨游
管理员
Rank: 9Rank: 9Rank: 9


UID 5
精华 0
积分 0
帖子 29695
阅读权限 200
注册 2007-4-3
状态 离线
发表于 2008-7-25 09:44  资料 文集 短消息 
相关照片:


图片附件: 011-教室建筑面没有钢筋.JPG (2008-7-25 09:45, 93.38 K)



图片附件: 012.JPG (2008-7-25 09:45, 100.64 K)



图片附件: 013.JPG (2008-7-25 09:45, 94.87 K)



图片附件: 014.JPG (2008-7-25 09:45, 93.47 K)



图片附件: 015.JPG (2008-7-25 09:45, 92.51 K)

顶部
信天谨游
管理员
Rank: 9Rank: 9Rank: 9


UID 5
精华 0
积分 0
帖子 29695
阅读权限 200
注册 2007-4-3
状态 离线
发表于 2008-7-25 09:46  资料 文集 短消息 
相关照片:


图片附件: 016.JPG (2008-7-25 09:47, 98.59 K)



图片附件: 017.JPG (2008-7-25 09:47, 82.45 K)



图片附件: 018.JPG (2008-7-25 09:47, 101.58 K)



图片附件: 019.JPG (2008-7-25 09:47, 103 K)



图片附件: 020.JPG (2008-7-25 09:47, 88.24 K)

顶部
信天谨游
管理员
Rank: 9Rank: 9Rank: 9


UID 5
精华 0
积分 0
帖子 29695
阅读权限 200
注册 2007-4-3
状态 离线
发表于 2008-7-25 09:49  资料 文集 短消息 
相关照片:


图片附件: 021-学前班.JPG (2008-7-25 09:50, 105.72 K)



图片附件: 022-学前班.JPG (2008-7-25 09:50, 86.47 K)



图片附件: 023-学前班.JPG (2008-7-25 09:50, 94.27 K)



图片附件: 024.JPG (2008-7-25 09:50, 87.23 K)



图片附件: 025.JPG (2008-7-25 09:50, 101.11 K)

顶部
信天谨游
管理员
Rank: 9Rank: 9Rank: 9


UID 5
精华 0
积分 0
帖子 29695
阅读权限 200
注册 2007-4-3
状态 离线
发表于 2008-7-25 09:51  资料 文集 短消息 
相关照片:


图片附件: 026.JPG (2008-7-25 09:52, 94.18 K)



图片附件: 027.JPG (2008-7-25 09:52, 79.89 K)



图片附件: 028墙体厚度,只有120mm.JPG (2008-7-25 09:52, 73.57 K)



图片附件: 029-学校一角.JPG (2008-7-25 09:52, 103.63 K)

顶部
信天谨游
管理员
Rank: 9Rank: 9Rank: 9


UID 5
精华 0
积分 0
帖子 29695
阅读权限 200
注册 2007-4-3
状态 离线
发表于 2008-7-25 11:23  资料 文集 短消息 
相关照片:


图片附件: 030.JPG (2008-7-25 11:24, 85.28 K)



图片附件: 031.JPG (2008-7-25 11:24, 87.11 K)



图片附件: 032.JPG (2008-7-25 11:24, 88.46 K)



图片附件: 033.JPG (2008-7-25 11:24, 80.53 K)



图片附件: 034.JPG (2008-7-25 11:24, 120.92 K)

顶部
 


当前时区 GMT+8, 现在时间是 2025-11-15 17:35
京ICP备07004120号

    本论坛支付平台由支付宝提供
携手打造安全诚信的交易社区 Powered by Discuz! 5.0.0  © 2001-2006 Comsenz Inc.
清除 Cookies - 联系我们 - 信天谨游 - Archiver