标题: 第111所:贵州省毕节大方县猫场镇大石头小学
信天谨游
管理员
Rank: 9Rank: 9Rank: 9


UID 5
精华 0
积分 0
帖子 29767
阅读权限 200
注册 2007-4-3
状态 离线
发表于 2012-6-28 20:15  资料 文集 短消息 
第111所:贵州省毕节大方县猫场镇大石头小学

一、学校简介
二、资助授权委托书
三、《资助建校协议书》及附件《图纸》和《工程预算单 》
四、《决算书》
五、捐款明细单
六、学校照片拍摄
顶部
信天谨游
管理员
Rank: 9Rank: 9Rank: 9


UID 5
精华 0
积分 0
帖子 29767
阅读权限 200
注册 2007-4-3
状态 离线
发表于 2012-6-29 13:53  资料 文集 短消息 
一、学校简介

  大石头小学位于离开镇政府所在地22公里的石山中,可以乘摩托车由一条土路到达那里(近一两年刚修通的)。土地贫瘠,只有一座20年前由毕节教育局出资6500元所建一座平顶房作为学校,一直由一位叫李有华的农民支撑教书(期间曾两次派公办教师来这里,但都没有留下)……

  学校有100名左右学生(暑假后有增减),只有李有华老师一人复式教学(六个年级的课程都是他一人讲授)。学校房子年久失修,已经是危房,难以保证学生安全,如果学校能够有好一点的房子和够用的教师,这个学校应该有200个左右的学生(400户左右居民)。


图片附件: 牌子.jpg (2012-6-29 14:53, 56.88 K)

顶部
信天谨游
管理员
Rank: 9Rank: 9Rank: 9


UID 5
精华 0
积分 0
帖子 29767
阅读权限 200
注册 2007-4-3
状态 离线
发表于 2012-6-29 14:28  资料 文集 短消息 
二、资助授权委托书


图片附件: 授权书.jpg (2012-6-29 15:18, 235.64 K)

顶部
信天谨游
管理员
Rank: 9Rank: 9Rank: 9


UID 5
精华 0
积分 0
帖子 29767
阅读权限 200
注册 2007-4-3
状态 离线
发表于 2012-6-29 14:29  资料 文集 短消息 
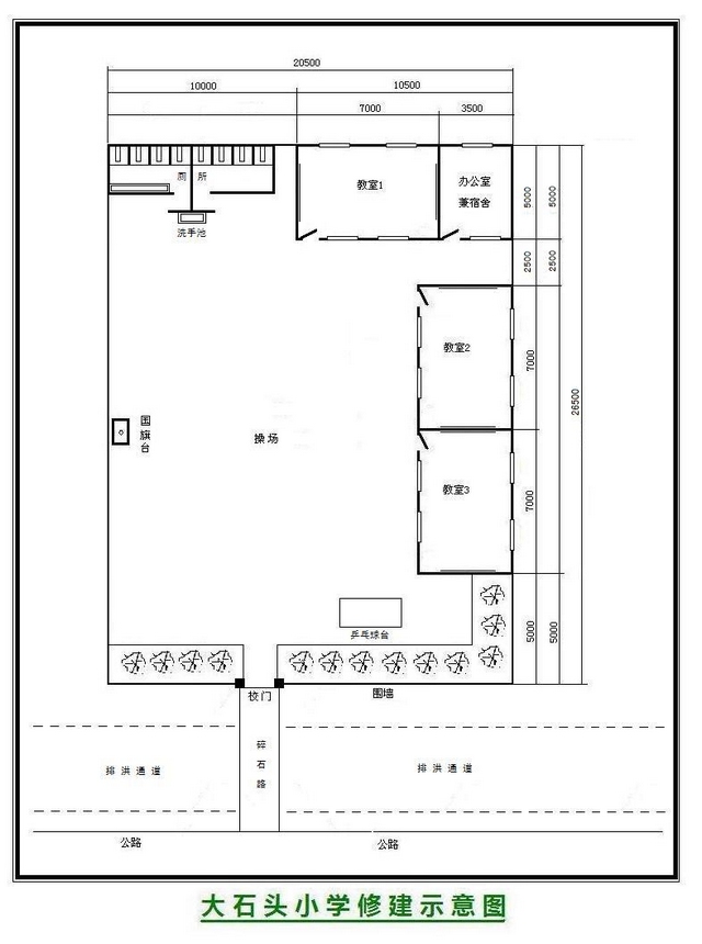
三、《资助建校协议书》及附件《图纸》和《工程预算单 》



图片附件: 协议1.jpg (2012-6-29 15:25, 231.97 K)





图片附件: 协议2.jpg (2012-6-29 15:25, 235.11 K)





图片附件: 示意图.jpg (2012-6-29 15:29, 137.33 K)



----------------------------------------------------

预算:

一、修建项目:
1、主体建筑——含3间教室和一间教师用房  教室 5米x7米x3间    教师用房 5米x3.5米x1间

               砖混结构(上下圈梁、构造柱、现浇屋顶,雨檐宽度0.8米)  室内净高度不低于3.5米

               墙体用圆孔空心水泥砖砌筑  厚度20  内外抹灰涂白涂料  室内地面硬化厚度100

                      教室 2门4窗  窗为1800x1800   铝合金窗

               教师用房  1门2窗

               建筑面积 142.2平米    (10.5+14)x(5+0.8)

2、厕所  男女各4个蹲位  墙体用圆孔空心水泥砖砌筑  厚度20  内外抹灰涂白涂料  现浇屋顶

              具体见厕所参考图

              建筑面积 20.8平米

3、操场、围墙、校门、国旗台等  围墙墙高1.5米用水泥砖砌筑 双面抹灰 基础为毛石300x500

                     校门围墙距通村公路10米以上  同公路间挖排水通道

4、通水、电,每间教室前后均配置黑板、50套双人课桌椅

二、主要材料及人工费用:

             建校资金为民间捐款,需节俭珍惜使用,避免浪费,建校施工由村委会组织,非技术人员尽可能使用本村劳力

             村委会需要组织村民做部分无偿投工投劳投料,用于平整场地、挖排水沟、石砌围墙基础等力所能及的辅助工程,体现“我们自己建学校”的精神,为自己的孩子创造一个较好的学习环境。

             圆孔空心水泥砖:    采购地点   猫场镇  采购价  元/块  到场价  3.2元/块

             水泥425#:  采购地点   猫场水泥厂   采购价  360元/吨  到场价  420元/吨

             钢筋: 采购地点   猫场镇  采购价   Φ8      到场价  5200元/吨
                                       Φ16     到场价  80元/根
                                       Φ20     到场价  110元/根

            混凝土(相当于C30砼)常规配合比   1立方混凝土 1.5方砂   8包水泥(0.4吨)

            地面硬化(相当于C15砼)常规配合比   1立方混凝土 1.5方砂   3包水泥(0.15吨)

            砂:  到场价  100元/方

            毛石: 到场价  100元/方

            碎石(公分石)      到场价  100元/方

            门窗:    门  7个  290元/个            窗  1.8mx1.8m  铝合金  150元/平米

            操场硬化  材料加人工  45元/平米(含材料运输费用)

          围墙砌筑 每延长米人工 50元/米(含毛石基础及墙体砌筑双面抹灰)  

            砖墙砌筑加内外抹灰用砂量0.075方/平米      水泥量0.9125吨/平米(每1000砖用砂约6方、水泥约1吨)

            人工费用  主体部分按照建筑单位面积计价  160元/平米 在基础完成后地面以上部分(地梁、圈梁、构造柱屋面浇筑,墙体砌筑,内外墙抹灰、涂料、门窗安装等)



三、分项预算

  1、教室及教师用房  建筑面积 142.2平米

       ①材料  砖  墙体面积=(24.5x2+5x6)x3.5-门窗面积(2x0.9x4+1.8x1.8x14)=276.5-52.56=223.94平米

          需用圆孔空心水泥砖=12.5x223.94=2800块  考虑到损耗 需购砖2900块   合计 9280元

          钢筋 站柱18根  Φ16  36根 (实际购买9米长/根)  

          地圈梁 总长79米  Φ16   37根(实际购买9米长/根)                  

          顶圈梁 总长79米  Φ16   37根(实际购买9米长/根)        共110根   计 8800元

          屋面板钢筋  Φ8  1300公斤   Φ6.5  200公斤   含全部圈梁站柱用箍筋  计 7800元

          抬担  3条  Φ20  15根  (上2下3)(实际购买9米长/根)             计 1650元

                                                                             钢筋合计 18250元

          水泥 24.5吨  砂石 160方   购水泥费用 10290元  购砂石费用 16000元       合计 26290元

          圈梁柱盖板混凝土体积 37方  按常规配比:1立方混凝土 0.5方砂  1方石  0.4吨(8包水泥)

          需购  水泥 14.8吨    砂 18.5方    石子  37方

          室内地面、散水约169平米  厚度100mm  体积16.9方  内外墙抹灰约600平米  合6方  合计22.9方

          常规配合比   1立方混凝土 1.5方砂石   3包水泥(0.15吨)(相当于C15砼)

          需购  水泥 3.45吨   砂石 34.5方

          墙体砌筑190平米 砌筑砂浆  需购  水泥1.6吨  砂7.2方

          毛石混凝土基础(500×800)长度约79米:79×0.5×0.8=31.6方

          需购  水泥4.5吨  毛石50方  砂10方

          门窗   门  7个  290元/个  合计 2030元

          窗  1.8mx1.8m  150元/平米   合计 6804元

          涂料  内墙磁粉 每平米5.5元  外墙乳胶漆 每平米11元  连工带料

          外墙面积 约270平米  费用2970元   内墙面积 约430平米  费用2365元    合计 5335元

          杂品  铁钉  铁丝                                                         约计  200元

          黑板  6块  300元/块                                                      合计 1800元

②人工  160x142.2=22752元

          本项工程总价  92741元    综合平米造价 为  652.19元/平米


2、厕所  建筑面积 20.8平米  工料全包价  500元/平米         本项工程总价  10400元


3、围墙  长54米 墙高1.5米 基础亦为圆孔空心水泥砖 基础一层圆孔空心水泥砖,墙体8层圆孔空心水泥砖

     ①材料  圆孔空心水泥砖  每米需圆孔空心水泥砖25块 需购砖1350块 购砖需 1350x3.2=4320元         

     ②人工砌筑抹灰及水泥砂石材料  50x54=2700元  内外抹灰面积约 162平米

     ③校门  铁管焊制铁栅门 校门1.8米x1.5米 价格约500元

                                  本项工程总价  7520元

4、操场  硬化面积约350平米 厚度0.01米

    ①材料及人工 45元/平米x350平米=15750元

    ②国旗台及旗杆  450元   国旗一面 60元
                                                              本项工程总价  16260元


5、通电通水及其他未预见费用 含乒乓球台 洗手池 等控制在3000元内
                                                                  本项总价  3000元

6、双人课桌椅 50套  180元x50=9000元

                                                                  本项总价  9000元


预算总价  138921元
顶部
信天谨游
管理员
Rank: 9Rank: 9Rank: 9


UID 5
精华 0
积分 0
帖子 29767
阅读权限 200
注册 2007-4-3
状态 离线
发表于 2012-6-29 15:42  资料 文集 短消息 
四、《决算书》






图片附件: 决算书.jpg (2012-6-29 15:42, 150.45 K)





图片附件: 超支说明.jpg (2012-6-29 17:59, 208.38 K)





图片附件: IMG_6970-1.jpg (2012-7-5 22:08, 52.76 K)





图片附件: 决算表1.jpg (2012-6-29 17:59, 227.65 K)






图片附件: 决算表2.jpg (2012-6-29 17:59, 226.5 K)

顶部
信天谨游
管理员
Rank: 9Rank: 9Rank: 9


UID 5
精华 0
积分 0
帖子 29767
阅读权限 200
注册 2007-4-3
状态 离线
发表于 2012-6-29 16:08  资料 文集 短消息 
五、捐款明细单:磨房自驾之路网友
顶部
信天谨游
管理员
Rank: 9Rank: 9Rank: 9


UID 5
精华 0
积分 0
帖子 29767
阅读权限 200
注册 2007-4-3
状态 离线
发表于 2012-6-29 16:13  资料 文集 短消息 
学校位置:


图片附件: 学校位置.jpg (2012-6-29 20:30, 222.2 K)

顶部
信天谨游
管理员
Rank: 9Rank: 9Rank: 9


UID 5
精华 0
积分 0
帖子 29767
阅读权限 200
注册 2007-4-3
状态 离线
发表于 2012-6-29 16:16  资料 文集 短消息 
六、学校照片拍摄

旧学校照片:




学生身后的墙已经松动的好像一下子就可以推倒,小学生的小手可以从缝隙中伸出去……

顶部
信天谨游
管理员
Rank: 9Rank: 9Rank: 9


UID 5
精华 0
积分 0
帖子 29767
阅读权限 200
注册 2007-4-3
状态 离线
发表于 2012-6-29 16:41  资料 文集 短消息 
旧学校照片:





顶部
信天谨游
管理员
Rank: 9Rank: 9Rank: 9


UID 5
精华 0
积分 0
帖子 29767
阅读权限 200
注册 2007-4-3
状态 离线
发表于 2012-6-29 18:09  资料 文集 短消息 




顶部
 


当前时区 GMT+8, 现在时间是 2025-12-14 02:10
京ICP备07004120号

    本论坛支付平台由支付宝提供
携手打造安全诚信的交易社区 Powered by Discuz! 5.0.0  © 2001-2006 Comsenz Inc.
清除 Cookies - 联系我们 - 信天谨游 - Archiver