游客:
注册
|
登录
|
会员
|
统计
|
帮助
信天谨游
»
山村修路
» 第56-60座桥:云南省宁蒗县翠玉乡蔡家坪下面4+1座桥(六不人生等)
‹‹ 上一主题
|
下一主题 ››
31
1/4
1
2
3
4
››
投票
交易
悬赏
活动
打印
|
推荐
|
订阅
|
收藏
标题: 第56-60座桥:云南省宁蒗县翠玉乡蔡家坪下面4+1座桥(六不人生等)
信天谨游
管理员
UID 5
精华 0
积分 0
帖子 30087
阅读权限 200
注册 2007-4-3
状态 离线
#1
发表于 2020-4-16 16:46
资料
文集
短消息
第56-60座桥:云南省宁蒗县翠玉乡蔡家坪下面4+1座桥(六不人生等)
2019年9月12日,蔡家坪王家村路上小涵管堵塞,河水从路上漫过,由于水流太大,一名上学娃娃被河水冲倒,幸好被一名路过大人发现并救起。
2019年8月以来,由于连续强降雨、上游泥沙冲击,蔡家坪村较大,有几个路段水流不畅,存在安全隐患,希望能修几座小桥。
注:蔡家坪村,村子较大,农户比较分散,住在不同的山坡上,还有很多翠玉乡其他村委会的村民搬迁至蔡家坪的,就是说行政划分上不是蔡家坪的人也住在蔡家坪,也要走这几座桥,具体的人数暂时无法统计,只能统计行政上是蔡家坪的人。这几座桥都是农户经常经过的,包括上学的中小学生。
第56-59座桥共4座桥由六不人生捐建,每座1.5万元,一共6万元。
第60座桥,这座桥由卢行者的朋友张志兰捐助(张志兰也捐了4座桥,一共6万元,另外3座桥在牛窝子村)
1、核桃林主路上1座桥
蔡家坪村核桃林主路,该路受益农户有210户,该村以彝族为主。该村小学生就读到翠玉完小,中学生就读到翠玉中学。该村距离小学校1.5公里,距离中学1.5公里。该桥位于蔡家坪村核桃林至翠玉中、小学路段,涉及蔡家坪210多户居民,800多人,其中有90多名孩子去学校读书通过该桥段。
2、杨家坪子路上1座桥
蔡家坪村杨家坪子,该路受益农户有90户,该村以彝族为主。该村小学生就读到翠玉完小,中学生就读到翠玉中学。该村距离小学校1.5公里,距离中学1.5公里。该桥位于蔡家坪村杨家坪子至翠玉中、小学路段,涉及蔡家坪90多户居民,350多人,其中有40多名孩子去学校读书通过该桥段。
3、拉拉队分路1座桥
蔡家坪村拉拉队分路,该路受益农户有80户,该村以彝族为主。该村小学生就读到翠玉完小,中学生就读到翠玉中学。该村距离小学校1.5公里,距离中学1.5公里。该桥位于蔡家坪村拉拉队分路至翠玉中、小学路段,涉及蔡家坪80多户居民,300多人,其中有30多名孩子去学校读书通过该桥段。
4、汉族村1座桥
蔡家坪村汉族村桥,该路受益农户有120户,该村以汉族为主。该村小学生就读到翠玉完小,中学生就读到翠玉中学。该村距离小学校1.5公里,距离中学1.5公里。该桥位于蔡家坪村汉族村至翠玉中、小学路段,涉及蔡家坪120多户居民,360多人,其中有30多名孩子去学校读书通过该桥段去学校读书。
5、追加1座桥:由卢行者的朋友张志兰捐助,张志兰捐助4座小桥,除了第60座之外,另外还有3座小桥在牛窝子村。
信天谨游
管理员
UID 5
精华 0
积分 0
帖子 30087
阅读权限 200
注册 2007-4-3
状态 离线
#2
发表于 2020-4-16 16:48
资料
文集
短消息
4座桥预算:
4座桥*1.5万元/座=6万元;
调整桥洞宽度,增加宽度至1500mm
信天谨游
管理员
UID 5
精华 0
积分 0
帖子 30087
阅读权限 200
注册 2007-4-3
状态 离线
#3
发表于 2020-4-16 16:50
资料
文集
短消息
就是这样的小桥。
小孩过河小视频:
https://weibo.com/tv/v/ICNMaeYXn?fid=1034:4492476220899350
图片附件
:
24.jpg
(2020-4-16 16:55, 189.73 K)
信天谨游
管理员
UID 5
精华 0
积分 0
帖子 30087
阅读权限 200
注册 2007-4-3
状态 离线
#4
发表于 2020-4-16 16:53
资料
文集
短消息
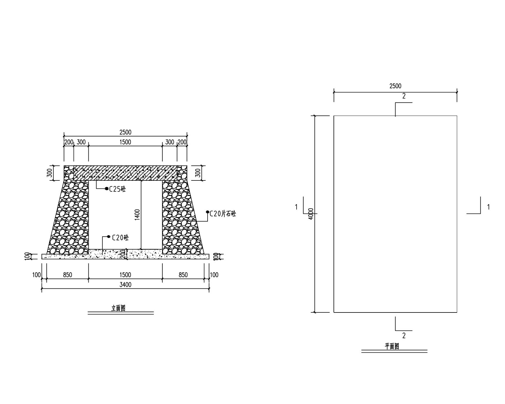
小桥预算:
桥墩用毛石混凝土,桥面用双层钢筋混凝土。
桥面:宽4.5米(同路宽),长3米;
桥洞:宽1.5米,高1.4米;
石料:13方*120元/方=1560元;
沙:12方*160元/方=1920元;
水泥:3.5吨*540元/吨=1890元
水泥运费:180元;
木板、撑杆、水平方:500元,
钢筋:3410元
主筋22圆2.5米长的27根*2层=54根
15根*110元=1650元
副筋22圆4米长的17根*2层=34根
16根*110元=1760元
钢筋间距15公分;
钢筋、施工工具运费:500元;
回填:500元
挖基础人工:1600元;
浇筑人工费:3600元;
合计:15660元
图片附件
:
QQ截图20200423220201.jpg
(2020-4-23 22:04, 90.27 K)
图片附件
:
QQ截图20200423220243.jpg
(2020-4-23 22:04, 82.2 K)
信天谨游
管理员
UID 5
精华 0
积分 0
帖子 30087
阅读权限 200
注册 2007-4-3
状态 离线
#5
发表于 2020-4-16 16:53
资料
文集
短消息
预留2.。
信天谨游
管理员
UID 5
精华 0
积分 0
帖子 30087
阅读权限 200
注册 2007-4-3
状态 离线
#6
发表于 2020-4-16 16:54
资料
文集
短消息
捐助修建协议书
图片附件
:
4.jpg
(2020-6-13 11:16, 357.29 K)
图片附件
:
5.jpg
(2020-6-13 11:16, 310.13 K)
信天谨游
管理员
UID 5
精华 0
积分 0
帖子 30087
阅读权限 200
注册 2007-4-3
状态 离线
#7
发表于 2020-4-16 16:54
资料
文集
短消息
结算说明
图片附件
:
7.jpg
(2020-6-13 11:18, 326.97 K)
信天谨游
管理员
UID 5
精华 0
积分 0
帖子 30087
阅读权限 200
注册 2007-4-3
状态 离线
#8
发表于 2020-4-16 16:54
资料
文集
短消息
竣工验收报告
图片附件
:
66.jpg
(2020-6-13 11:19, 331.12 K)
信天谨游
管理员
UID 5
精华 0
积分 0
帖子 30087
阅读权限 200
注册 2007-4-3
状态 离线
#9
发表于 2020-5-28 10:29
资料
文集
短消息
修桥:蔡家坪3桥。
图片附件
:
311_副本.jpg
(2020-5-28 10:29, 272.16 K)
图片附件
:
312_副本.jpg
(2020-5-28 10:29, 315.55 K)
图片附件
:
313_副本.jpg
(2020-5-28 10:29, 289.13 K)
图片附件
:
314_副本.jpg
(2020-5-28 10:29, 317.67 K)
信天谨游
管理员
UID 5
精华 0
积分 0
帖子 30087
阅读权限 200
注册 2007-4-3
状态 离线
#10
发表于 2020-5-28 10:31
资料
文集
短消息
修桥:蔡家坪3桥。
图片附件
:
315_副本.jpg
(2020-5-28 10:31, 223.72 K)
图片附件
:
316_副本.jpg
(2020-5-28 10:31, 328.87 K)
图片附件
:
317_副本.jpg
(2020-5-28 10:31, 333.44 K)
图片附件
:
318_副本.jpg
(2020-5-28 10:31, 262.37 K)
31
1/4
1
2
3
4
››
投票
交易
悬赏
活动
信天谨游
信天谨游助学
> 修建学校
> 一对一资助
> 勘误表
> 山村修路
> 改善学生伙食
> 助学交流
> 待修建学校
> 预算勘误表
> 其它助学活动
> 走访资料
> 助学之友
> 学生园地
> 版务
当前时区 GMT+8, 现在时间是 2026-4-21 19:06
京ICP备07004120号
Powered by
Discuz!
5.0.0
© 2001-2006
Comsenz Inc.
TOP
清除 Cookies
-
联系我们
-
信天谨游
-
Archiver
控制面板首页
编辑个人资料
积分交易
公众用户组
好友列表
基本概况
论坛排行
主题排行
发帖排行
积分排行
在线时间
管理团队