游客:
注册
|
登录
|
会员
|
统计
|
帮助
信天谨游
»
山村修路
» 第110座桥:云南省宁蒗县翠玉乡上嘎落村1桥(已定)
‹‹ 上一主题
|
下一主题 ››
13
1/2
1
2
››
投票
交易
悬赏
活动
打印
|
推荐
|
订阅
|
收藏
标题: 第110座桥:云南省宁蒗县翠玉乡上嘎落村1桥(已定)
信天谨游
管理员
UID 5
精华 0
积分 0
帖子 30208
阅读权限 200
注册 2007-4-3
状态 离线
#1
发表于 2022-12-16 16:45
资料
文集
短消息
第110座桥:云南省宁蒗县翠玉乡上嘎落村1桥(已定)
修建小桥的缘起:
(1)之前在修路过程中,遇到急需修桥的地方,就“路+桥”修建了。
(2)小桥连建:2019年9月12日,云南省宁蒗县翠玉乡蔡家坪王家村路上小涵管堵塞,河水从路上漫过,由于水流太大,一名上学娃娃被河水冲倒,幸好被一名路过大人发现并救起。山村有很多这样的路段,或者的一个小涵管,或者就是干路,一旦遇到下大雨,就水漫路面,村民和学生通行困难或者无法通行,存在安全隐患。
在山村,很有必要修建“毛细血管桥”,尽管桥小,但能解决村民和学生的实际困难,排除隐患。
最初在翠玉乡修建小桥,后来在新营盘乡和其他乡修建小桥。
这样的小桥,总造价低,如果单独修建一座,同样需要施工机械、工具和人员等,单桥修建成本较高,所以一般都是多座小桥一起施工,比如:4座小桥连建。
-------------分界线----------
翠玉乡翠玉村委会上嘎落村1桥位于上嘎落村中的一条辅路上,该村以汉族为主,有农户20户,人口大约为300多口,上下学时有中小学生4-5人左右,这一路段水流不畅,涵洞较小,地势低洼,路面较低,无法满足雨季水流较大时的通行条件,村民自己用木棍搭建的木桥,存在很大的安全隐患。
捐款人:吕丹
信天谨游
管理员
UID 5
精华 0
积分 0
帖子 30208
阅读权限 200
注册 2007-4-3
状态 离线
#2
发表于 2022-12-16 17:16
资料
文集
短消息
预算:
石头:12方*180元=2160元
沙子:13方*260元=3380元
钢筋:22○30根*115元=3450元
水泥:30吨*520元=1560元
木板、木方、撑杆合计:900元
人工:24个*200元=4800元
挖机挖基础和回填:1200元
木板、钢筋、水泥运费合计:550元
合计:18000元
信天谨游
管理员
UID 5
精华 0
积分 0
帖子 30208
阅读权限 200
注册 2007-4-3
状态 离线
#3
发表于 2022-12-16 17:22
资料
文集
短消息
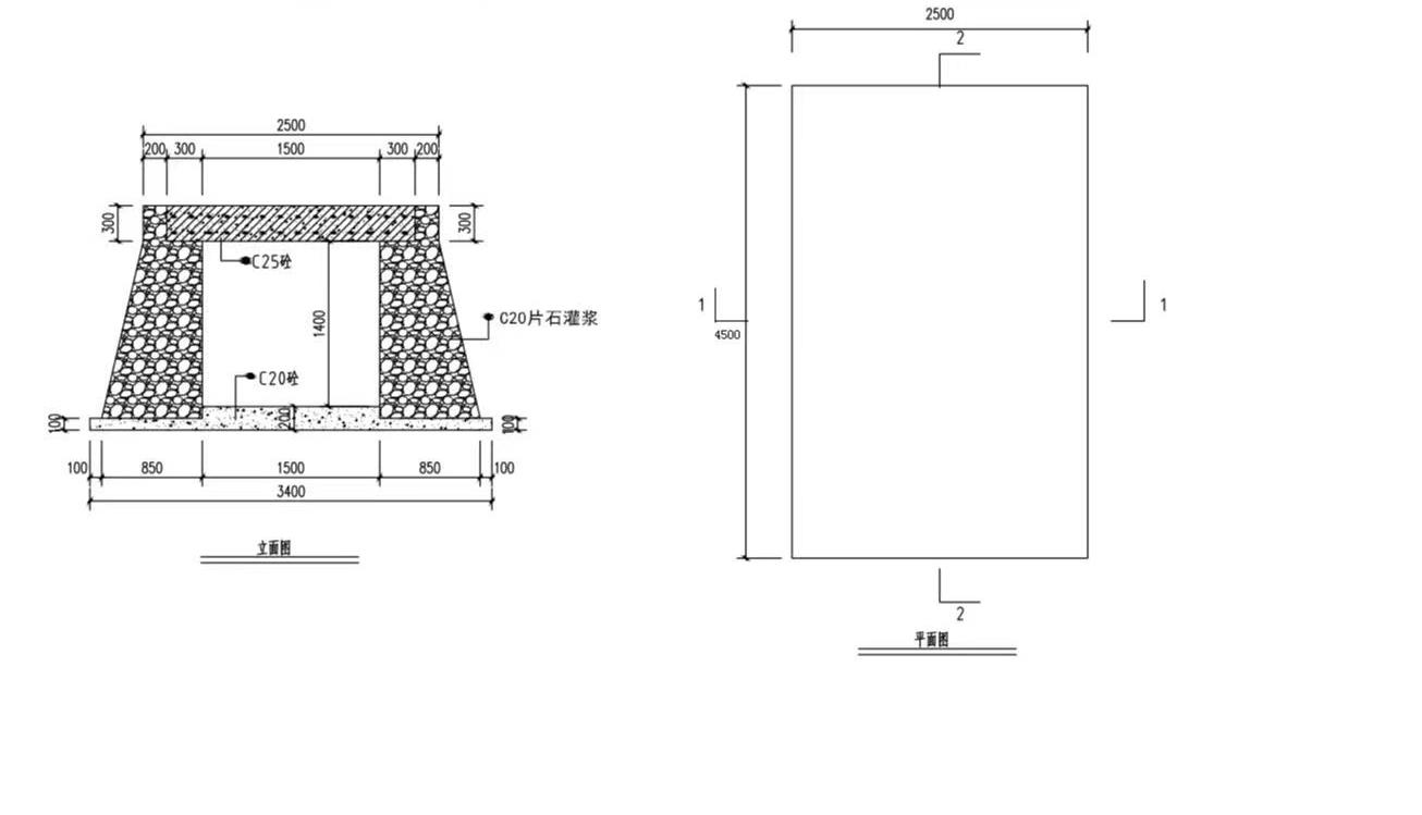
施工方式:
桥墩为片石灌浆
桥板为钢筋混凝土
图片附件
:
小桥图纸-01.jpg
(2022-12-16 19:30, 50.43 K)
信天谨游
管理员
UID 5
精华 0
积分 0
帖子 30208
阅读权限 200
注册 2007-4-3
状态 离线
#4
发表于 2022-12-16 17:23
资料
文集
短消息
预留1..
信天谨游
管理员
UID 5
精华 0
积分 0
帖子 30208
阅读权限 200
注册 2007-4-3
状态 离线
#5
发表于 2022-12-16 17:23
资料
文集
短消息
预留2..
信天谨游
管理员
UID 5
精华 0
积分 0
帖子 30208
阅读权限 200
注册 2007-4-3
状态 离线
#6
发表于 2022-12-16 17:23
资料
文集
短消息
预留3...
信天谨游
管理员
UID 5
精华 0
积分 0
帖子 30208
阅读权限 200
注册 2007-4-3
状态 离线
#7
发表于 2022-12-16 17:24
资料
文集
短消息
预留4..
信天谨游
管理员
UID 5
精华 0
积分 0
帖子 30208
阅读权限 200
注册 2007-4-3
状态 离线
#8
发表于 2022-12-16 17:26
资料
文集
短消息
现在路上有一座木头小桥,到了雨季洪水下来,村民和学生就无法通行,需要重新修桥。
图片附件
:
111_副本.jpg
(2022-12-16 17:26, 291.38 K)
图片附件
:
112_副本.jpg
(2022-12-16 17:26, 248.97 K)
图片附件
:
113_副本.jpg
(2022-12-16 17:26, 221.83 K)
信天谨游
管理员
UID 5
精华 0
积分 0
帖子 30208
阅读权限 200
注册 2007-4-3
状态 离线
#9
发表于 2022-12-16 17:26
资料
文集
短消息
施工修建。
图片附件
:
11-1_副本.jpg
(2022-12-16 17:26, 271.99 K)
图片附件
:
11-2_副本.jpg
(2022-12-16 17:26, 200.44 K)
图片附件
:
11-3_副本.jpg
(2022-12-16 17:26, 178.87 K)
图片附件
:
11-4_副本.jpg
(2022-12-16 17:26, 201.87 K)
信天谨游
管理员
UID 5
精华 0
积分 0
帖子 30208
阅读权限 200
注册 2007-4-3
状态 离线
#10
发表于 2022-12-16 17:27
资料
文集
短消息
施工修建。
图片附件
:
11-5_副本.jpg
(2022-12-16 17:27, 134.67 K)
图片附件
:
11-6_副本.jpg
(2022-12-16 17:27, 264.84 K)
图片附件
:
11-7_副本.jpg
(2022-12-16 17:27, 246.41 K)
图片附件
:
11-8_副本.jpg
(2022-12-16 17:27, 191.3 K)
图片附件
:
11-9_副本.jpg
(2022-12-16 17:27, 204.39 K)
13
1/2
1
2
››
投票
交易
悬赏
活动
信天谨游
信天谨游助学
> 修建学校
> 一对一资助
> 勘误表
> 山村修路
> 改善学生伙食
> 助学交流
> 待修建学校
> 预算勘误表
> 其它助学活动
> 走访资料
> 助学之友
> 学生园地
> 版务
当前时区 GMT+8, 现在时间是 2026-5-31 22:50
京ICP备07004120号
Powered by
Discuz!
5.0.0
© 2001-2006
Comsenz Inc.
TOP
清除 Cookies
-
联系我们
-
信天谨游
-
Archiver
控制面板首页
编辑个人资料
积分交易
公众用户组
好友列表
基本概况
论坛排行
主题排行
发帖排行
积分排行
在线时间
管理团队