标题: 83-84座桥:云南省宁蒗县新营盘乡新营盘村委会1-2桥-太长内详
信天谨游
管理员
Rank: 9Rank: 9Rank: 9


UID 5
精华 0
积分 0
帖子 29729
阅读权限 200
注册 2007-4-3
状态 离线
发表于 2021-3-16 18:02  资料 文集 短消息 
83-84座桥:云南省宁蒗县新营盘乡新营盘村委会1-2桥-太长内详

云南省宁蒗县新营盘乡新营盘村委会1桥、2桥位于宁蒗县新营盘乡新营盘村委会新营盘下村的一条主路上,该村有农户105户,人口大约为556口,该村以汉族,彝族为主。这一路段水流不畅,涵洞较小,无法满足雨季水流较大时的通行条件。其中一座桥桥位于村子中心,有一半的中小学生要经过该桥。另一座桥位于主路下半段,全村大半农户的农田,耕地,都要经过,现在小涵洞无法满足雨季时候的通行条件,存在很大的安全隐患。希望能重新修建两座桥,谢谢。


其中:
新营盘村委会1桥修建预算为:18000元
新营盘村委会2桥修建预算为:38000元

两座桥合计费用:56000元。

(一)预算:
石头:12方*180元=2160元
沙子:13方*260元=3380元
钢筋:22○30根*115元=3450元
水泥:30吨*520元=1560元
木板、木方、撑杆合计:900元
人工:24个*200元=4800元
挖机挖基础和回填:1250元
木板、钢筋、水泥运费合计:500元
合计:18000元


(二)预算:
石头:40方*180元=7200元
沙子:25方*260元=6500元
钢筋:22○的70根*115元=8050元
水泥:7吨*520元=3640元
水泥运费:600元
木板、木方、撑杆合计:2600元
人工:33*200元=6600元
挖机挖基础+回填合计:2000元
运费:木板、钢筋:810元
合计:38000元


小桥施工方式:
  桥墩为毛石混凝土
  桥板为钢筋混凝土



捐款人:李永钦中国粉丝
桥名:永钦1桥-新营盘村1桥、永钦2桥-新营盘村2桥
顶部
信天谨游
管理员
Rank: 9Rank: 9Rank: 9


UID 5
精华 0
积分 0
帖子 29729
阅读权限 200
注册 2007-4-3
状态 离线
发表于 2021-3-16 18:12  资料 文集 短消息 
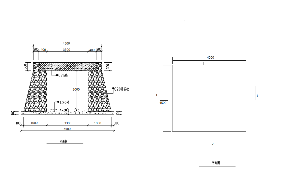
小桥施工方式:
  桥墩为毛石混凝土
  桥板为钢筋混凝土


图片附件: 33.png (2021-3-16 18:12, 97.47 K)



图片附件: 34.png (2021-3-16 18:12, 84.83 K)

顶部
信天谨游
管理员
Rank: 9Rank: 9Rank: 9


UID 5
精华 0
积分 0
帖子 29729
阅读权限 200
注册 2007-4-3
状态 离线
发表于 2021-3-16 18:21  资料 文集 短消息 
预留1.。
顶部
信天谨游
管理员
Rank: 9Rank: 9Rank: 9


UID 5
精华 0
积分 0
帖子 29729
阅读权限 200
注册 2007-4-3
状态 离线
发表于 2021-3-16 18:21  资料 文集 短消息 
预留2.。
顶部
信天谨游
管理员
Rank: 9Rank: 9Rank: 9


UID 5
精华 0
积分 0
帖子 29729
阅读权限 200
注册 2007-4-3
状态 离线
发表于 2021-3-16 18:21  资料 文集 短消息 
预留3.。
顶部
信天谨游
管理员
Rank: 9Rank: 9Rank: 9


UID 5
精华 0
积分 0
帖子 29729
阅读权限 200
注册 2007-4-3
状态 离线
发表于 2021-3-16 18:22  资料 文集 短消息 
预留4.。
顶部
信天谨游
管理员
Rank: 9Rank: 9Rank: 9


UID 5
精华 0
积分 0
帖子 29729
阅读权限 200
注册 2007-4-3
状态 离线
发表于 2021-3-16 18:22  资料 文集 短消息 
预留5.。
顶部
信天谨游
管理员
Rank: 9Rank: 9Rank: 9


UID 5
精华 0
积分 0
帖子 29729
阅读权限 200
注册 2007-4-3
状态 离线
发表于 2021-3-16 18:23  资料 文集 短消息 
其中一座桥。


图片附件: 11_副本.jpg (2021-3-16 18:35, 202.07 K)



图片附件: 12_副本.jpg (2021-3-16 18:35, 184.75 K)



图片附件: 13_副本.jpg (2021-3-16 18:35, 198.97 K)



图片附件: 14_副本.jpg (2021-3-16 18:35, 196.72 K)

顶部
信天谨游
管理员
Rank: 9Rank: 9Rank: 9


UID 5
精华 0
积分 0
帖子 29729
阅读权限 200
注册 2007-4-3
状态 离线
发表于 2021-3-16 18:37  资料 文集 短消息 
另一座桥


图片附件: 21_副本.jpg (2021-3-16 18:37, 250.9 K)



图片附件: 22_副本.jpg (2021-3-16 18:37, 228.22 K)

顶部
信天谨游
管理员
Rank: 9Rank: 9Rank: 9


UID 5
精华 0
积分 0
帖子 29729
阅读权限 200
注册 2007-4-3
状态 离线
发表于 2021-3-16 18:39  资料 文集 短消息 
施工照片。


图片附件: 111_副本.jpg (2021-3-16 18:39, 199.2 K)



图片附件: 112_副本.jpg (2021-3-16 18:39, 226.19 K)



图片附件: 113_副本.jpg (2021-3-16 18:39, 184.64 K)



图片附件: 114_副本.jpg (2021-3-16 18:39, 273.64 K)



图片附件: 115_副本.jpg (2021-3-16 18:39, 195.05 K)



图片附件: 116_副本.jpg (2021-3-16 18:39, 175.88 K)

顶部
 


当前时区 GMT+8, 现在时间是 2025-11-28 11:19
京ICP备07004120号

    本论坛支付平台由支付宝提供
携手打造安全诚信的交易社区 Powered by Discuz! 5.0.0  © 2001-2006 Comsenz Inc.
清除 Cookies - 联系我们 - 信天谨游 - Archiver