游客:
注册
|
登录
|
会员
|
统计
|
帮助
信天谨游
»
山村修路
» 第66-69座桥:云南省宁蒗县翠玉乡蔡家坪村3座,白岔河1座-内详
‹‹ 上一主题
|
下一主题 ››
32
1/4
1
2
3
4
››
投票
交易
悬赏
活动
打印
|
推荐
|
订阅
|
收藏
标题: 第66-69座桥:云南省宁蒗县翠玉乡蔡家坪村3座,白岔河1座-内详
信天谨游
管理员
UID 5
精华 0
积分 0
帖子 29640
阅读权限 200
注册 2007-4-3
状态 离线
#1
发表于 2020-6-19 12:53
资料
文集
短消息
第66-69座桥:云南省宁蒗县翠玉乡蔡家坪村3座,白岔河1座-内详
爱心人士徐伟鸿捐助3座桥,位于云南省宁蒗县翠玉乡翠玉村委会蔡家坪,桥的编号是:蔡家坪8桥、蔡家坪9桥、蔡家坪10桥,3座桥预算4.5万元。
另外1座桥,捐款人:张颜齐YoRoll全国后援会,桥取名:猴齐桥-白岔河桥,预算1.5万元。
4座桥。每座桥按1.5万元计,4座桥共6万元。
由于此4座桥属于乡村道路上的“毛细血管”桥,桥体较小,每座桥都按设计统一标准。故,采用工程包死价,按照预算支付最终工程款。
毛细血管小桥的缘由:
(1)2019年9月12日,云南宁蒗县翠玉乡蔡家坪王家村路上小涵管堵塞,河水从路上漫过,由于水流太大,一名上学娃娃被河水冲倒,幸好被一名路过大人发现并救起。
(2)2019年8月以来,由于连续强降雨、上游泥沙冲击,蔡家坪村较大,有几个路段水流不畅,存在安全隐患,希望能修几座小桥。另外翠玉乡其他村也有一些类似这样的小桥,需要修建。
(3)2020年开始修建这样的小桥,在翠玉乡一个村、一个村开始修建。
修此4座桥简介:
1、蔡家坪3座桥:
蔡家坪村主路附近的4条小路,这4条小路受益农户有210户,该村以彝族为主。蔡家坪村,村子较大,农户比较分散,住在不同的山坡上,还有很多翠玉乡其他村委会的村民搬迁至蔡家坪的。蔡家坪村较大,这4个路段水流不畅,存在安全隐患,希望能修4座小桥(因为第4座桥是属于双引流桥,一座桥需要修两个分桥,资金问题暂时不修,本次只修3座桥)。该村小学生就读到翠玉完小,中学生就读到翠玉中学。该村距离小学校1.5公里,距离中学1.5公里。该桥位于蔡家坪村核桃林至翠玉中、小学路段,涉及蔡家坪210多户居民,800多人,其中有90多名孩子去学校读书通过该桥段。
到了雨季,原来小桥位置处水流不畅,存在安全隐含,村民希望能帮他们修桥。
2、白岔河1座桥:
白岔河村主路,该路受益农户有35户,该村以普米族为主。该村小学生就读到翠玉完小,中学生就读到翠玉中学。该村距离小学校5公里,距离中学5公里。该桥位于白岔河村至翠玉中、小学路段,涉及白岔河村35多户居民,260多人,其中有20多名孩子去学校读书通过该桥段。现在是搭建的木桥,下雨后容易腐烂,不牢固,存在很大的安全隐患。
信天谨游
管理员
UID 5
精华 0
积分 0
帖子 29640
阅读权限 200
注册 2007-4-3
状态 离线
#2
发表于 2020-6-19 12:53
资料
文集
短消息
就是这样的毛细血管小桥,这样的小桥很多,下面是其中一座小孩过河小视频:
https://weibo.com/tv/v/ICNMaeYXn?fid=1034:4492476220899350
图片附件
:
115.jpg
(2020-6-19 12:55, 189.73 K)
信天谨游
管理员
UID 5
精华 0
积分 0
帖子 29640
阅读权限 200
注册 2007-4-3
状态 离线
#3
发表于 2020-6-19 12:58
资料
文集
短消息
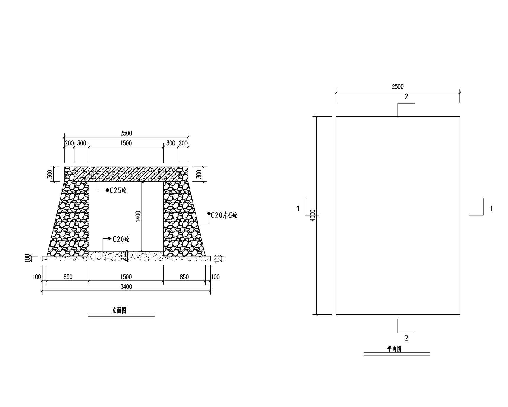
小桥预算:
桥墩用毛石混凝土,桥面用双层钢筋混凝土。
桥面:宽4.5米(同路宽),长3米;
桥洞:宽1.5米,高1.4米;
石料:13方*120元/方=1560元;
沙:12方*160元/方=1920元;
水泥:3.5吨*540元/吨=1890元
水泥运费:180元;
木板、撑杆、水平方:500元,
钢筋:3410元
主筋22圆2.5米长的27根*2层=54根
15根*110元=1650元
副筋22圆4米长的17根*2层=34根
16根*110元=1760元
钢筋间距15公分;
钢筋、施工工具运费:500元;
回填:500元
挖基础人工:1600元;
浇筑人工费:3600元;
合计:15660元
图片附件
:
QQ截图20200423220201.jpg
(2020-6-19 12:59, 90.27 K)
图片附件
:
QQ截图20200423220243.jpg
(2020-6-19 12:59, 82.2 K)
信天谨游
管理员
UID 5
精华 0
积分 0
帖子 29640
阅读权限 200
注册 2007-4-3
状态 离线
#4
发表于 2020-6-19 13:00
资料
文集
短消息
预留1.
信天谨游
管理员
UID 5
精华 0
积分 0
帖子 29640
阅读权限 200
注册 2007-4-3
状态 离线
#5
发表于 2020-6-19 13:00
资料
文集
短消息
预留2.。
信天谨游
管理员
UID 5
精华 0
积分 0
帖子 29640
阅读权限 200
注册 2007-4-3
状态 离线
#6
发表于 2020-6-19 13:00
资料
文集
短消息
预留3.。
信天谨游
管理员
UID 5
精华 0
积分 0
帖子 29640
阅读权限 200
注册 2007-4-3
状态 离线
#7
发表于 2020-6-19 13:00
资料
文集
短消息
预留4
信天谨游
管理员
UID 5
精华 0
积分 0
帖子 29640
阅读权限 200
注册 2007-4-3
状态 离线
#8
发表于 2020-6-19 13:02
资料
文集
短消息
蔡家坪待修的3座桥:
图片附件
:
8-1桥_副本.jpg
(2020-6-19 13:02, 243.34 K)
图片附件
:
8-2桥_副本.jpg
(2020-6-19 13:02, 245.61 K)
图片附件
:
8-5桥_副本.jpg
(2020-6-19 13:02, 229.13 K)
图片附件
:
8-3桥_副本.jpg
(2020-6-19 13:02, 243.08 K)
信天谨游
管理员
UID 5
精华 0
积分 0
帖子 29640
阅读权限 200
注册 2007-4-3
状态 离线
#9
发表于 2020-6-19 13:03
资料
文集
短消息
蔡家坪待修的3座桥:
图片附件
:
9-1桥_副本.jpg
(2020-6-19 13:03, 383.05 K)
信天谨游
管理员
UID 5
精华 0
积分 0
帖子 29640
阅读权限 200
注册 2007-4-3
状态 离线
#10
发表于 2020-6-19 13:03
资料
文集
短消息
蔡家坪待修的3座桥:
图片附件
:
10-1桥_副本.jpg
(2020-6-19 13:03, 405.9 K)
图片附件
:
10-2桥_副本.jpg
(2020-6-19 13:03, 361.34 K)
32
1/4
1
2
3
4
››
投票
交易
悬赏
活动
最近访问的论坛 ...
助学交流
信天谨游
信天谨游助学
> 修建学校
> 一对一资助
> 勘误表
> 山村修路
> 改善学生伙食
> 助学交流
> 待修建学校
> 预算勘误表
> 其它助学活动
> 走访资料
> 助学之友
> 学生园地
> 版务
当前时区 GMT+8, 现在时间是 2025-11-5 09:57
京ICP备07004120号
Powered by
Discuz!
5.0.0
© 2001-2006
Comsenz Inc.
TOP
清除 Cookies
-
联系我们
-
信天谨游
-
Archiver
控制面板首页
编辑个人资料
积分交易
公众用户组
好友列表
基本概况
论坛排行
主题排行
发帖排行
积分排行
在线时间
管理团队