标题: 贵州省毕节大方县猫场镇大石头小学(磨房自驾捐,竣工)
信天谨游
管理员
Rank: 9Rank: 9Rank: 9


UID 5
精华 0
积分 0
帖子 29787
阅读权限 200
注册 2007-4-3
状态 离线
发表于 2011-7-17 12:25  资料 文集 短消息 
贵州省毕节大方县猫场镇大石头小学(磨房自驾捐,竣工)

贵州省毕节地区大方县猫场镇大石头小学

大石头小学位于离开镇政府所在地15公里的石山中,可以乘摩托车由一条土路到达那里(近一两年刚修通的)。土地贫瘠,只有一座20年前由毕节教育局出资6500元所建一座平顶房作为学校,一直由一位叫李有华的农民支撑教书(期间曾两次派公办教师来这里,但都没有留下)……

学校有100名左右学生(暑假后有增减),只有李有华老师一人复式教学(六个年级的课程都是他一人讲授)。学校房子年久失修,已经是危房,难以保证学生安全,如果学校能够有好一点的房子和够用的教师,这个学校应该有200个左右的学生(400户左右居民)。
顶部
信天谨游
管理员
Rank: 9Rank: 9Rank: 9


UID 5
精华 0
积分 0
帖子 29787
阅读权限 200
注册 2007-4-3
状态 离线
发表于 2011-7-17 14:48  资料 文集 短消息 
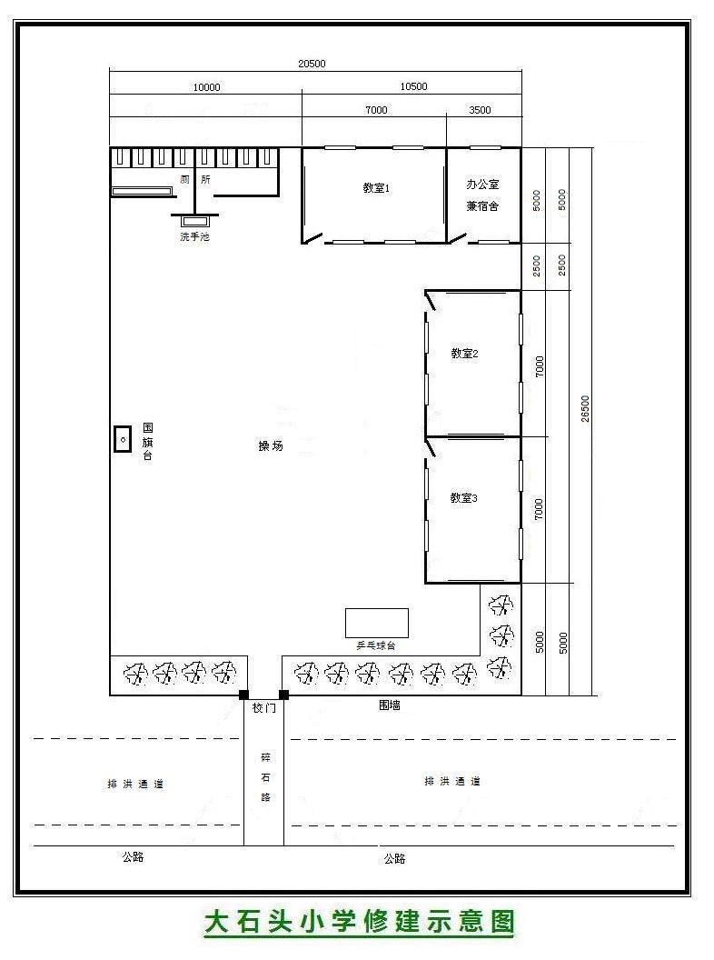
修建图纸


图片附件: 图纸2.jpg (2011-7-21 10:04, 76.13 K)

顶部
信天谨游
管理员
Rank: 9Rank: 9Rank: 9


UID 5
精华 0
积分 0
帖子 29787
阅读权限 200
注册 2007-4-3
状态 离线
发表于 2011-7-17 14:49  资料 文集 短消息 
大石头小学修建预算草案

一、修建项目:

  1、主体建筑——含3间教室和一间教师用房  教室 5米x7米x3间    教师用房 5米x3.5米x1间

                 砖混结构(上下圈梁、构造柱、现浇屋顶,雨檐宽度0.8米)  室内净高度不低于3.5米

                 墙体用圆孔空心水泥砖砌筑  厚度20  内外抹灰涂白涂料  室内地面硬化厚度100

                 教室 2门4窗  窗为1800x1800   铝合金窗

                 教师用房  1门2窗

                 建筑面积 142.2平米    (10.5+14)x(5+0.8)

  2、厕所  男女各4个蹲位  墙体用圆孔空心水泥砖砌筑  厚度20  内外抹灰涂白涂料  现浇屋顶

                 具体见厕所参考图

                 建筑面积 20.8平米

  3、操场、围墙、校门、国旗台等  围墙墙高1.5米用水泥砖砌筑 双面抹灰 基础为毛石300x500

     校门围墙距通村公路10米以上  同公路间挖排水通道

  3、通水、电,每间教室前后均配置黑板、50套双人课桌椅

二、主要材料及人工费用:

    建校资金为民间捐款,需节俭珍惜使用,避免浪费,建校施工由村委会组织,非技术人员尽可能使用本村劳力

    村委会需要组织村民做部分无偿投工投劳投料,用于平整场地、挖排水沟、石砌围墙基础等力所能及的辅助工程,

    体现“我们自己建学校”的精神,为自己的孩子创造一个较好的学习环境。

    圆孔空心水泥砖:    采购地点   猫场镇  采购价  元/块  到场价  3.2元/块

    水泥425#:  采购地点   猫场水泥厂   采购价  360元/吨  到场价  420元/吨

    钢筋: 采购地点   猫场镇  采购价   Φ8      到场价  5200元/吨
                                       Φ16     到场价  80元/根
                                       Φ20     到场价  110元/根

    混凝土(相当于C30砼)常规配合比   1立方混凝土 1.5方砂   8包水泥(0.4吨)

    地面硬化(相当于C15砼)常规配合比   1立方混凝土 1.5方砂   3包水泥(0.15吨)

    砂:       到场价  100元/方

    毛石:       到场价  100元/方

    碎石(公分石)      到场价  100元/方

    门窗:    门  7个  290元/个            窗  1.8mx1.8m  铝合金  150元/平米

      操场硬化  材料加人工  45元/平米(含材料运输费用)

  围墙砌筑 每延长米人工 50元/米(含毛石基础及墙体砌筑双面抹灰)  

    砖墙砌筑加内外抹灰用砂量0.075方/平米      水泥量0.9125吨/平米(每1000砖用砂约6方、水泥约1吨)

    人工费用  主体部分按照建筑单位面积计价  160元/平米 在基础完成后地面以上部分(地梁、圈梁、构造柱屋面浇筑,

    墙体砌筑,内外墙抹灰、涂料、门窗安装等)



三、分项预算

  1、教室及教师用房  建筑面积 142.2平米

  ①材料  砖  墙体面积=(24.5x2+5x6)x3.5-门窗面积(2x0.9x4+1.8x1.8x14)=276.5-52.56=223.94平米

              需用圆孔空心水泥砖=12.5x223.94=2800块  考虑到损耗 需购砖2900块   合计 9280元

          钢筋 站柱18根  Φ16  36根 (实际购买9米长/根)  

               地圈梁 总长79米  Φ16   37根(实际购买9米长/根)                  

               顶圈梁 总长79米  Φ16   37根(实际购买9米长/根)        共110根   计 8800元

               屋面板钢筋  Φ8  1300公斤   Φ6.5  200公斤   含全部圈梁站柱用箍筋  计 7800元

               抬担  3条  Φ20  15根  (上2下3)(实际购买9米长/根)             计 1650元

                                                                             钢筋合计 18250元

          水泥 24.5吨  砂石 160方   购水泥费用 10290元  购砂石费用 16000元       合计 26290元

              圈梁柱盖板混凝土体积 37方  按常规配比:1立方混凝土 0.5方砂  1方石  0.4吨(8包水泥)

                  需购  水泥 14.8吨    砂 18.5方    石子  37方

              室内地面、散水约169平米  厚度100mm  体积16.9方  内外墙抹灰约600平米  合6方  合计22.9方

                  常规配合比   1立方混凝土 1.5方砂石   3包水泥(0.15吨)(相当于C15砼)

                  需购  水泥 3.45吨   砂石 34.5方

              墙体砌筑190平米 砌筑砂浆  需购  水泥1.6吨  砂7.2方

              毛石混凝土基础(500×800)长度约79米:79×0.5×0.8=31.6方

                  需购  水泥4.5吨  毛石50方  砂10方

         门窗   门  7个  290元/个  合计 2030元

                窗  1.8mx1.8m  150元/平米   合计 6804元

          涂料  内墙磁粉 每平米5.5元  外墙乳胶漆 每平米11元  连工带料

                外墙面积 约270平米  费用2970元   内墙面积 约430平米  费用2365元    合计 5335元

          杂品  铁钉  铁丝                                                         约计  200元

          黑板  6块  300元/块                                                      合计 1800元

  ②人工  160x142.2=22752元

                                     本项工程总价  92741元    综合平米造价 为  652.19元/平米



  2、厕所  建筑面积 20.8平米  工料全包价  500元/平米         本项工程总价  10400元


  3、围墙  长54米 墙高1.5米 基础亦为圆孔空心水泥砖 基础一层圆孔空心水泥砖,墙体8层圆孔空心水泥砖

  ①材料  圆孔空心水泥砖  每米需圆孔空心水泥砖25块 需购砖1350块 购砖需 1350x3.2=4320元         

  ②人工砌筑抹灰及水泥砂石材料  50x54=2700元  内外抹灰面积约 162平米

  ③校门  铁管焊制铁栅门 校门1.8米x1.5米 价格约500元

                                                              本项工程总价  7520元

  4、操场  硬化面积约350平米 厚度0.01米

  ①材料及人工 45元/平米x350平米=15750元

  ②国旗台及旗杆  450元   国旗一面 60元

                                                              本项工程总价  16260元


  5、通电通水及其他未预见费用 含乒乓球台 洗手池 等控制在3000元内

                                                                  本项总价  3000元

  6、双人课桌椅 50套  180元x50=9000元

                                                                  本项总价  9000元


预算总价  138921元
顶部
信天谨游
管理员
Rank: 9Rank: 9Rank: 9


UID 5
精华 0
积分 0
帖子 29787
阅读权限 200
注册 2007-4-3
状态 离线
发表于 2011-7-17 14:49  资料 文集 短消息 
旧学校照片:


图片附件: 001.jpg (2011-7-17 14:49, 61.36 K)



图片附件: 002.jpg (2011-7-17 14:49, 74.71 K)

顶部
信天谨游
管理员
Rank: 9Rank: 9Rank: 9


UID 5
精华 0
积分 0
帖子 29787
阅读权限 200
注册 2007-4-3
状态 离线
发表于 2011-7-17 14:50  资料 文集 短消息 
照片:


图片附件: 003.jpg (2011-7-17 14:50, 87.95 K)



图片附件: 004.jpg (2011-7-17 14:50, 58.84 K)

顶部
信天谨游
管理员
Rank: 9Rank: 9Rank: 9


UID 5
精华 0
积分 0
帖子 29787
阅读权限 200
注册 2007-4-3
状态 离线
发表于 2011-7-17 14:51  资料 文集 短消息 
照片:


图片附件: 005.jpg (2011-7-17 14:51, 92.75 K)



图片附件: 006.jpg (2011-7-17 14:51, 96.13 K)

顶部
信天谨游
管理员
Rank: 9Rank: 9Rank: 9


UID 5
精华 0
积分 0
帖子 29787
阅读权限 200
注册 2007-4-3
状态 离线
发表于 2011-7-17 14:52  资料 文集 短消息 
照片:


图片附件: 007.jpg (2011-7-17 14:52, 87.74 K)



图片附件: 008.jpg (2011-7-17 14:52, 76.39 K)

顶部
信天谨游
管理员
Rank: 9Rank: 9Rank: 9


UID 5
精华 0
积分 0
帖子 29787
阅读权限 200
注册 2007-4-3
状态 离线
发表于 2011-7-17 14:53  资料 文集 短消息 
照片:


图片附件: 009.jpg (2011-7-17 14:53, 69.06 K)



图片附件: 010.jpg (2011-7-17 14:53, 65.33 K)

顶部
信天谨游
管理员
Rank: 9Rank: 9Rank: 9


UID 5
精华 0
积分 0
帖子 29787
阅读权限 200
注册 2007-4-3
状态 离线
发表于 2011-7-17 14:53  资料 文集 短消息 
照片:


图片附件: 011.jpg (2011-7-17 14:53, 77.14 K)



图片附件: 012.jpg (2011-7-17 14:53, 72.18 K)

顶部
信天谨游
管理员
Rank: 9Rank: 9Rank: 9


UID 5
精华 0
积分 0
帖子 29787
阅读权限 200
注册 2007-4-3
状态 离线
发表于 2011-7-17 14:54  资料 文集 短消息 
照片:


图片附件: 013.jpg (2011-7-17 14:54, 93.46 K)



图片附件: 014.jpg (2011-7-17 14:54, 105.52 K)

顶部
 


当前时区 GMT+8, 现在时间是 2025-12-18 03:29
京ICP备07004120号

    本论坛支付平台由支付宝提供
携手打造安全诚信的交易社区 Powered by Discuz! 5.0.0  © 2001-2006 Comsenz Inc.
清除 Cookies - 联系我们 - 信天谨游 - Archiver