标题: 第116所:贵州省毕节地区大方县猫场镇箐口村小学
信天谨游
管理员
Rank: 9Rank: 9Rank: 9


UID 5
精华 0
积分 0
帖子 29504
阅读权限 200
注册 2007-4-3
状态 离线
发表于 2013-6-29 18:26  资料 文集 短消息 
第116所:贵州省毕节地区大方县猫场镇箐口村小学

一、学校简介
二、资助授权委托书
三、《资助建校协议书》及附件《图纸》和《工程预算单 》
四、《决算书》
五、捐款明细单
六、学校照片拍摄
顶部
信天谨游
管理员
Rank: 9Rank: 9Rank: 9


UID 5
精华 0
积分 0
帖子 29504
阅读权限 200
注册 2007-4-3
状态 离线
发表于 2013-6-29 19:18  资料 文集 短消息 
一、学校简介
贵州省毕节地区大方县猫场镇箐口村小学

    箐口村位于贵州省大方县猫场镇目前尚无村小的两个行政村之一,当地老乡和政府希望我们能够帮助这个行政村建立一座村小,以实现镇政府和中心校每个行政村都有自己村小,孩子们能够就近上学的规划。这里还没有达到先进地区撤点并校的规划和实施条件。

    箐口村有9个村民组,人口1500多人(按人口结构测算,应该有适龄学生200人)。目前这里的学生分散在周边的6所外村学校上学(猫场小学、熊宇小学、联合小学、六仲小学、前进小学、永久小学等),到这些学校的路程都至少要走一个多小时的山路,很多适龄孩子都推迟了上学的年龄,一些已经十五六岁的孩子还在读小学……

    这里原来也是有过村小的,当时是用木结构民房,90年代学生人数曾经达到过200多人,有两位代课教师。后来在1998年时由于两个代课教师转正调走,学校停办。这里的学生分别到周围的其他学校读书,教室也由于无人管理而垮掉并拆除——但村干和村民一直希望把学校恢复起来,历次人代会上都曾经提出提案,猫场镇政府和中心校也已经把恢复这所学校列入规划,当地老乡和乡中心校希望能够把这个学校重新建成有7间教室的村完小,近几天正在征求村民代表意见,研究重建方案及校址、征地等事宜。

------------------------------------------------------------------------------------------分界线----------------------------------------------------------------------------------------
以上是2011年7月考察资料,2012年8月计划修建该校,后附预算为2012年8月编制新预算。--------管理员编辑本贴。


图片附件: 纪念碑.JPG (2013-7-4 17:19, 140.07 K)

顶部
信天谨游
管理员
Rank: 9Rank: 9Rank: 9


UID 5
精华 0
积分 0
帖子 29504
阅读权限 200
注册 2007-4-3
状态 离线
发表于 2013-6-29 19:18  资料 文集 短消息 
经过村民的充分讨论,箐口村新校址已经确定,一位村民把自己的土地让出来建学校了……

村支书是个精干的小伙子,他是镇政府派驻村里的挂职干部,很想在挂职期间为当地的群众做些实事。

关于建校方案,我们分两步走:

      第一期,先建三间教室和一间教师用房(办公室兼住宿),考虑建校第一个学期能够有100多个学生,3-4位教师,每个教室两个班级,复式教学。并把厕所、围墙、操场等辅助设施建好。在学生人数增加后再考虑第二期的捐助……

      第二期(一期完成后看学生就读情况再定),当地有9个村民组,总人口近1600人,根据适龄人口分析,学生人数应该在200人左右,再加上学前班,学生人数可能突破200人,那时就在一期的房子上加盖一层,变成6间教室,这样就可以了。

    这里也是石山区,耕地少,土地贫瘠,靠土地的收入仅能基本解决温饱,花钱则靠外出打工。近年来国家帮助修路、改造危房等,很多村民的居住条件有所改善,但走下公路不远,还是可以看到有些村民还居住在茅草房里……
顶部
信天谨游
管理员
Rank: 9Rank: 9Rank: 9


UID 5
精华 0
积分 0
帖子 29504
阅读权限 200
注册 2007-4-3
状态 离线
发表于 2013-6-29 19:21  资料 文集 短消息 
二、资助授权委托书
顶部
信天谨游
管理员
Rank: 9Rank: 9Rank: 9


UID 5
精华 0
积分 0
帖子 29504
阅读权限 200
注册 2007-4-3
状态 离线
发表于 2013-6-29 19:23  资料 文集 短消息 
三、《资助建校协议书》及附件《图纸》和《工程预算单 》


图片附件: 修建协议1.JPG (2013-6-30 14:23, 145.81 K)

顶部
信天谨游
管理员
Rank: 9Rank: 9Rank: 9


UID 5
精华 0
积分 0
帖子 29504
阅读权限 200
注册 2007-4-3
状态 离线
发表于 2013-6-29 19:23  资料 文集 短消息 
.


图片附件: 修建协议2.JPG (2013-6-30 14:23, 142.07 K)

顶部
信天谨游
管理员
Rank: 9Rank: 9Rank: 9


UID 5
精华 0
积分 0
帖子 29504
阅读权限 200
注册 2007-4-3
状态 离线
发表于 2013-6-29 19:24  资料 文集 短消息 
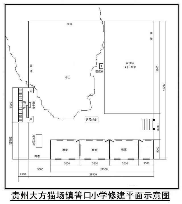
图纸:


图片附件: 箐口小学平面草图1..jpg (2013-6-29 19:26, 120.38 K)

顶部
信天谨游
管理员
Rank: 9Rank: 9Rank: 9


UID 5
精华 0
积分 0
帖子 29504
阅读权限 200
注册 2007-4-3
状态 离线
发表于 2013-6-29 19:24  资料 文集 短消息 
工程预算单:
箐口村小学修建预算草案(2012年8月15日编制)

一、修建项目:

  1、主体建筑——二层砖混楼房,共4间5米x7米房间,楼下一间分隔为两间,分别作为教师用房和伙房

                 3间教室 5米x7米x3间  教师用房 5米x3.5米x1间  伙房 5米x3.5米x1间

                 砖混结构(上下圈梁、构造柱、现浇屋顶,走台宽度1.2米)  室内净高度不低于3.4米

                 墙体用圆孔空心水泥砖砌筑  厚度20  内外抹灰涂白涂料  室内地面硬化厚度0.1米

                 教室 2门4窗     教师用房及伙房  1门2窗  露天楼梯 宽1.5米

                 建筑面积 173.6平米  平面图标注尺寸均为外墙或中心线

  2、厕所  男女各4个蹲位  墙体用圆孔空心水泥砖砌筑  厚度20  内外抹灰涂白涂料  屋顶现浇

                 具体见厕所参考图

                 建筑面积 20.8平米

  3、操场、围墙、校门、国旗台等  围墙墙高1.5米用水泥砖砌筑 基础为毛石300x500

     为保护操场,不允许任何车辆进入,校门宽度不超过2米  同外面高低差用台阶解决,不用斜坡

  4、通水、电,每间教室前后均配置黑板、配50套双人课桌椅


二、主要材料及人工费用:

    1、无偿投工投劳投料部分

    建校资金为民间捐款,需节俭珍惜使用,避免浪费,建校施工由村委会组织,非技术人员尽可能使用本村劳力

    村委会需要组织村民做部分无偿投工投劳投料,用于平整场地、挖排水沟、石砌围墙基础、教室基础等力所能

    及的辅助工程,实现三通一平,体现“我们自己建学校”的精神,为自己的孩子创造一个较好的学习环境。

    2、主要材料采购计价  基本参照大石头小学计价,运价有提高

    圆孔空心水泥砖:    采购地点   猫场镇  采购价  元/块  到场价  3.0元/块

    水泥425#:  采购地点      水泥厂   采购价  360元/吨  到场价  420元/吨

    钢筋: 采购地点   猫场镇   采购价   Φ8      到场价  5200元/吨
                                       Φ16     到场价  80元/根
                                       Φ20     到场价  120元/根

    混凝土(相当于C30砼)常规配合比   1立方混凝土 1.5方砂   8包水泥(0.4吨)

    地面硬化(相当于C15砼)常规配合比   1立方混凝土 1.5方砂   3包水泥(0.15吨)

    砂(含粉砂):    采购地点   砂场       到场价  120元/方

    毛石: 采购地点                        到场价  110元/方

    碎石(公分石) 采购地点                到场价  120元/方

    门窗:    门  7个  290元/个            窗 14樘  1.8mx1.8m   150元/平米

    操场硬化  碎石混凝土厚度0.1米  材料加人工  45元/平米(含材料运输费用)

  围墙砌筑 全包价 170元/延长米  墙高1.5米 为300x500毛石基础、墙体为圆孔空心水泥砖、内外抹灰

    3、人工费用

    主体部分按照建筑单位面积计价  160元/平米 在基础完成后地面以上部分(地梁、圈梁、构造柱、屋面浇筑,

    墙体砌筑,内外墙抹灰、涂料、门窗安装等)



三、分项预算

  1、教室及教师用房  建筑面积 173.6平米

     综合造价  700元/平米  细节参照 大石头小学预算             本项工程总价  121520元


  2、厕所  建筑面积 20.8平米  工料全包价  600元/平米           本项工程总价  12480元


  3、围墙  长98.5米  全包计价 170元/延长米     16745元

     校门  铁管焊制铁栅门 校门价格约1000元

                                                            本项工程总价  17745元

  4、操场  篮球场392平米 硬化厚度0.01米

  ①材料及人工 40元/平米x392平米=15680元

  ②国旗台及旗杆  600元  国旗一面 60元

                                                            本项工程总价  16340元


  5、未预见费用 含通电、乒乓球台 洗手池 水窖 等控制在6000元内

                                                                 本项总价  6000元

  6、双人课桌椅 57套  180元x57=10260元

                                                                 本项总价  10260元

---------------------------------------------------------------------------------
                                                               预算总价  184345元(圆整为185000元)

                                                           建议捐款额为  185000元
顶部
信天谨游
管理员
Rank: 9Rank: 9Rank: 9


UID 5
精华 0
积分 0
帖子 29504
阅读权限 200
注册 2007-4-3
状态 离线
发表于 2013-6-29 19:27  资料 文集 短消息 
四、《决算书》


图片附件: 决算书.JPG (2013-7-1 12:08, 135.38 K)



图片附件: 决算报告.JPG (2013-7-1 12:08, 28.72 K)



图片附件: 决算明细01.JPG (2013-7-1 12:08, 38.24 K)

顶部
信天谨游
管理员
Rank: 9Rank: 9Rank: 9


UID 5
精华 0
积分 0
帖子 29504
阅读权限 200
注册 2007-4-3
状态 离线
发表于 2013-6-29 19:27  资料 文集 短消息 
明细:


图片附件: 决算明细02.JPG (2013-7-1 12:12, 44.62 K)



图片附件: 决算明细03.JPG (2013-7-1 12:12, 46.33 K)



图片附件: 决算明细04.JPG (2013-7-1 12:12, 50.85 K)

顶部
 


当前时区 GMT+8, 现在时间是 2025-10-26 12:09
京ICP备07004120号

    本论坛支付平台由支付宝提供
携手打造安全诚信的交易社区 Powered by Discuz! 5.0.0  © 2001-2006 Comsenz Inc.
清除 Cookies - 联系我们 - 信天谨游 - Archiver