游客:
注册
|
登录
|
会员
|
统计
|
帮助
信天谨游
»
山村修路
» 第94-101座桥:云南省宁蒗县新营盘乡大庆村8座桥(已定)
‹‹ 上一主题
|
下一主题 ››
21
1/3
1
2
3
››
投票
交易
悬赏
活动
打印
|
推荐
|
订阅
|
收藏
标题: 第94-101座桥:云南省宁蒗县新营盘乡大庆村8座桥(已定)
信天谨游
管理员
UID 5
精华 0
积分 0
帖子 29487
阅读权限 200
注册 2007-4-3
状态 离线
#1
发表于 2022-4-7 11:17
资料
文集
短消息
第94-101座桥:云南省宁蒗县新营盘乡大庆村8座桥(已定)
修建小桥的缘起:
(1)之前在修路过程中,遇到急需修桥的地方,就“路+桥”修建了。
(2)小桥连建:2019年9月12日,云南省宁蒗县翠玉乡蔡家坪王家村路上小涵管堵塞,河水从路上漫过,由于水流太大,一名上学娃娃被河水冲倒,幸好被一名路过大人发现并救起。山村有很多这样的路段,或者的一个小涵管,或者就是干路,一旦遇到下大雨,就水漫路面,村民和学生通行困难或者无法通行,存在安全隐患。
在山村,很有必要修建“毛细血管桥”,尽管桥小,但能解决村民和学生的实际困难,排除隐患。
最初在翠玉乡修建小桥,后来在新营盘乡和其他乡修建小桥。
这样的小桥,总造价低,如果单独修建一座,同样需要施工机械、工具和人员等,单桥修建成本较高,所以一般都是多座小桥一起施工,比如:4座小桥连建。
云南省宁蒗县新营盘乡新营盘村委会大庆自然村1桥、2桥、3桥、4桥、5桥、6桥、7桥、8桥简介
大庆自然村位于云南省宁蒗县新营盘乡新营盘村委会的一个偏远小村庄,该村有农户56户,人口大约为290口,中小学生30多人。该村居民以少数民族彝族为主,村里全部是土路,一到雨季就会有山水流淌,由于此路段上涵洞较小,水流不畅,村民多次维修都无法满足雨季通行条件,存在很大的安全隐患。
新营盘村委会大庆自然村8座桥修建预算为:18000元/每座,8座桥总计144000元
预算:
石头:12方*180元=2160元
沙子:13方*260元=3380元
钢筋:22○30根*115元=3450元
水泥:3吨*520元=1560元
木板、木方、撑杆合计:900元
人工:24个*200元=4800元
挖机挖基础和回填:1200元
木板、钢筋、水泥运费合计:550元
合计:18000元
每座桥预算总计:18000元
8座桥预算总计:144000元
捐款人:热巴和爱丽丝
桥名:
①阿娜尔罕-大庆村1桥
②高雯-大庆村2桥
③关小迪-大庆村3桥
④李慧珍-大庆村4桥
⑤白凤九-大庆村5桥
⑥烈如歌-大庆村6桥
⑦周放-大庆村7桥
⑧乔晶晶-大庆村8桥
信天谨游
管理员
UID 5
精华 0
积分 0
帖子 29487
阅读权限 200
注册 2007-4-3
状态 离线
#2
发表于 2022-4-7 11:52
资料
文集
短消息
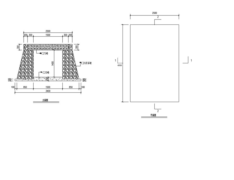
施工方式:
桥墩为毛石混凝土
桥板为钢筋混凝土
图片附件
:
222_副本.jpg
(2022-4-7 11:52, 40.08 K)
信天谨游
管理员
UID 5
精华 0
积分 0
帖子 29487
阅读权限 200
注册 2007-4-3
状态 离线
#3
发表于 2022-4-7 11:52
资料
文集
短消息
预留1.。
信天谨游
管理员
UID 5
精华 0
积分 0
帖子 29487
阅读权限 200
注册 2007-4-3
状态 离线
#4
发表于 2022-4-7 11:53
资料
文集
短消息
预留2.。
信天谨游
管理员
UID 5
精华 0
积分 0
帖子 29487
阅读权限 200
注册 2007-4-3
状态 离线
#5
发表于 2022-4-7 11:53
资料
文集
短消息
预留3.。
信天谨游
管理员
UID 5
精华 0
积分 0
帖子 29487
阅读权限 200
注册 2007-4-3
状态 离线
#6
发表于 2022-4-7 11:53
资料
文集
短消息
预留4.。
信天谨游
管理员
UID 5
精华 0
积分 0
帖子 29487
阅读权限 200
注册 2007-4-3
状态 离线
#7
发表于 2022-4-7 11:53
资料
文集
短消息
预留5.。
信天谨游
管理员
UID 5
精华 0
积分 0
帖子 29487
阅读权限 200
注册 2007-4-3
状态 离线
#8
发表于 2022-4-7 12:00
资料
文集
短消息
修桥需要的照片
图片附件
:
24_副本.jpg
(2022-4-7 12:00, 209.3 K)
图片附件
:
1-1_副本.jpg
(2022-4-7 12:00, 267.04 K)
图片附件
:
2-1_副本.jpg
(2022-4-7 12:00, 296.15 K)
图片附件
:
2-2_副本.jpg
(2022-4-7 12:00, 280.68 K)
信天谨游
管理员
UID 5
精华 0
积分 0
帖子 29487
阅读权限 200
注册 2007-4-3
状态 离线
#9
发表于 2022-4-7 12:02
资料
文集
短消息
修桥照片
图片附件
:
3-1_副本.jpg
(2022-4-7 12:02, 315.55 K)
图片附件
:
3-2_副本.jpg
(2022-4-7 12:02, 291.7 K)
图片附件
:
4-2_副本.jpg
(2022-4-7 12:02, 262.42 K)
图片附件
:
5-2_副本.jpg
(2022-4-7 12:03, 151.6 K)
信天谨游
管理员
UID 5
精华 0
积分 0
帖子 29487
阅读权限 200
注册 2007-4-3
状态 离线
#10
发表于 2022-4-7 12:04
资料
文集
短消息
修桥照片
图片附件
:
6-1_副本.jpg
(2022-4-7 12:04, 283.97 K)
图片附件
:
7-1_副本.jpg
(2022-4-7 12:04, 227.37 K)
图片附件
:
8-2_副本.jpg
(2022-4-7 12:04, 268.89 K)
21
1/3
1
2
3
››
投票
交易
悬赏
活动
信天谨游
信天谨游助学
> 修建学校
> 一对一资助
> 勘误表
> 山村修路
> 改善学生伙食
> 助学交流
> 待修建学校
> 预算勘误表
> 其它助学活动
> 走访资料
> 助学之友
> 学生园地
> 版务
当前时区 GMT+8, 现在时间是 2025-10-17 02:23
京ICP备07004120号
Powered by
Discuz!
5.0.0
© 2001-2006
Comsenz Inc.
TOP
清除 Cookies
-
联系我们
-
信天谨游
-
Archiver
控制面板首页
编辑个人资料
积分交易
公众用户组
好友列表
基本概况
论坛排行
主题排行
发帖排行
积分排行
在线时间
管理团队