游客:
注册
|
登录
|
会员
|
统计
|
帮助
信天谨游
»
山村修路
» 第104座桥:云南省宁蒗县翠玉乡蔡家坪16桥(已定)
‹‹ 上一主题
|
下一主题 ››
21
1/3
1
2
3
››
投票
交易
悬赏
活动
打印
|
推荐
|
订阅
|
收藏
标题: 第104座桥:云南省宁蒗县翠玉乡蔡家坪16桥(已定)
信天谨游
管理员
UID 5
精华 0
积分 0
帖子 29482
阅读权限 200
注册 2007-4-3
状态 离线
#1
发表于 2022-10-6 16:52
资料
文集
短消息
第104座桥:云南省宁蒗县翠玉乡蔡家坪16桥(已定)
修建小桥的缘起:
(1)之前在修路过程中,遇到急需修桥的地方,就“路+桥”修建了。
(2)小桥连建:2019年9月12日,云南省宁蒗县翠玉乡蔡家坪王家村路上小涵管堵塞,河水从路上漫过,由于水流太大,一名上学娃娃被河水冲倒,幸好被一名路过大人发现并救起。山村有很多这样的路段,或者的一个小涵管,或者就是干路,一旦遇到下大雨,就水漫路面,村民和学生通行困难或者无法通行,存在安全隐患。
在山村,很有必要修建“毛细血管桥”,尽管桥小,但能解决村民和学生的实际困难,排除隐患。
最初在翠玉乡修建小桥,后来在新营盘乡和其他乡修建小桥。
这样的小桥,总造价低,如果单独修建一座,同样需要施工机械、工具和人员等,单桥修建成本较高,所以一般都是多座小桥一起施工,比如:4座小桥连建。
-------------分界线----------
本桥是蔡家坪16桥,现在路上有一座小桥,外观看着还行,可是桥洞里面用木头支撑,属于危桥,另外桥洞太小,到了雨季洪水下来,雨水漫过桥面,村民和学生就无法通行,需要重新修桥。
翠玉乡翠玉村委会蔡家坪村16桥简介
翠玉乡蔡家坪村位于宁蒗县翠玉乡翠玉村委会的一个偏远小村庄,该村有农户120户,人口大约为400口,中小学生260多人。该村以少数民族彝族和汉族为主。由于村民比较集中,村里没有铺设水泥路(目前政府正在铺水泥路),此桥桥洞内由木头支撑,不牢固,存在很大的安全隐患。蔡家坪村16桥位于村庄和翠玉乡中小学之间,地理位置十分重要,此桥修建完成投入使用的话,将受益的中小学生达260多人,间接受益人群高达1500多人,现在路上有一座小桥,外观看着还行,可是桥洞里面用木头支撑,属于危桥,另外桥洞太小,到了雨季洪水下来,雨水漫过桥面,村民和学生就无法通行,需要重新修桥。
-------------分界线-----------
捐款人:石晓萌和她的朋友们:3万元、邹卫兵邹慧君全家:1万元、王玉明补齐6000元。
桥名:蔡家坪16桥
信天谨游
管理员
UID 5
精华 0
积分 0
帖子 29482
阅读权限 200
注册 2007-4-3
状态 离线
#2
发表于 2022-10-6 16:59
资料
文集
短消息
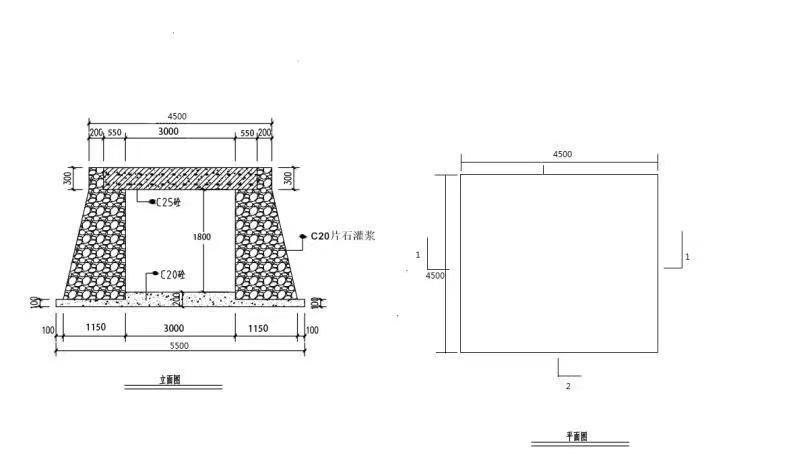
预算:
蔡家坪16桥预算:
石头:38方*180元=6840元
沙子:22方*260元=5720元
钢筋:22○的70根*140元=9800元
水泥:7.5吨*720元=5400元
水泥运费:800元
木板、木方、撑杆合计:2600元
人工:33*200元=6600元
挖机挖基础:2600元
运费:木板、钢筋:1200元
回填+护栏:2240元
合计:43800元
另外:进水口挡土墙:2200元
总计:46000元
小桥施工方式: 桥墩为片石灌浆;桥板为钢筋混凝土
图片附件
:
微信图片_20221006144134.jpg
(2022-10-6 17:02, 26.59 K)
信天谨游
管理员
UID 5
精华 0
积分 0
帖子 29482
阅读权限 200
注册 2007-4-3
状态 离线
#3
发表于 2022-10-6 17:05
资料
文集
短消息
预留1.。
信天谨游
管理员
UID 5
精华 0
积分 0
帖子 29482
阅读权限 200
注册 2007-4-3
状态 离线
#4
发表于 2022-10-6 17:05
资料
文集
短消息
预留2.。
信天谨游
管理员
UID 5
精华 0
积分 0
帖子 29482
阅读权限 200
注册 2007-4-3
状态 离线
#5
发表于 2022-10-6 17:05
资料
文集
短消息
预留3.。
信天谨游
管理员
UID 5
精华 0
积分 0
帖子 29482
阅读权限 200
注册 2007-4-3
状态 离线
#6
发表于 2022-10-6 17:05
资料
文集
短消息
预留4.。
信天谨游
管理员
UID 5
精华 0
积分 0
帖子 29482
阅读权限 200
注册 2007-4-3
状态 离线
#7
发表于 2022-10-6 17:08
资料
文集
短消息
现在路上有一座小桥,外观看着还行,可是桥洞里面用木头支撑,属于危桥,另外桥洞太小,到了雨季洪水下来,雨水漫过桥面,村民和学生就无法通行,需要重新修桥。
图片附件
:
11_副本.jpg
(2022-10-6 17:08, 264.65 K)
图片附件
:
12_副本.jpg
(2022-10-6 17:08, 248.01 K)
图片附件
:
13_副本.jpg
(2022-10-6 17:08, 265.97 K)
图片附件
:
14_副本.jpg
(2022-10-6 17:08, 280.29 K)
信天谨游
管理员
UID 5
精华 0
积分 0
帖子 29482
阅读权限 200
注册 2007-4-3
状态 离线
#8
发表于 2022-10-6 17:09
资料
文集
短消息
现在路上有一座小桥,外观看着还行,可是桥洞里面用木头支撑,属于危桥,另外桥洞太小,到了雨季洪水下来,雨水漫过桥面,村民和学生就无法通行,需要重新修桥。
图片附件
:
15_副本.jpg
(2022-10-6 17:09, 269.25 K)
图片附件
:
16_副本.jpg
(2022-10-6 17:09, 279.48 K)
图片附件
:
17_副本.jpg
(2022-10-6 17:09, 209.13 K)
信天谨游
管理员
UID 5
精华 0
积分 0
帖子 29482
阅读权限 200
注册 2007-4-3
状态 离线
#9
发表于 2022-10-6 17:09
资料
文集
短消息
现在路上有一座小桥,外观看着还行,可是桥洞里面用木头支撑,属于危桥,另外桥洞太小,到了雨季洪水下来,雨水漫过桥面,村民和学生就无法通行,需要重新修桥。
图片附件
:
19_副本-2.jpg
(2022-10-6 17:09, 223.96 K)
图片附件
:
20_副本-2.jpg
(2022-10-6 17:09, 172.5 K)
信天谨游
管理员
UID 5
精华 0
积分 0
帖子 29482
阅读权限 200
注册 2007-4-3
状态 离线
#10
发表于 2022-12-16 18:53
资料
文集
短消息
施工修建。
21
1/3
1
2
3
››
投票
交易
悬赏
活动
信天谨游
信天谨游助学
> 修建学校
> 一对一资助
> 勘误表
> 山村修路
> 改善学生伙食
> 助学交流
> 待修建学校
> 预算勘误表
> 其它助学活动
> 走访资料
> 助学之友
> 学生园地
> 版务
当前时区 GMT+8, 现在时间是 2025-10-14 20:22
京ICP备07004120号
Powered by
Discuz!
5.0.0
© 2001-2006
Comsenz Inc.
TOP
清除 Cookies
-
联系我们
-
信天谨游
-
Archiver
控制面板首页
编辑个人资料
积分交易
公众用户组
好友列表
基本概况
论坛排行
主题排行
发帖排行
积分排行
在线时间
管理团队