标题: 92-93座桥:云南省宁蒗县翠玉乡牦牛场两座桥(拼单)
信天谨游
管理员
Rank: 9Rank: 9Rank: 9


UID 5
精华 0
积分 0
帖子 29487
阅读权限 200
注册 2007-4-3
状态 离线
发表于 2022-3-3 12:56  资料 文集 短消息 
92-93座桥:云南省宁蒗县翠玉乡牦牛场两座桥(拼单)

92-93座桥:牦牛场村爱心1桥、牦牛场村爱心2桥
简介:
牦牛场村爱心1桥、爱心2桥待建位置位于云南省宁蒗县翠玉乡春东村委会牦牛场村落中间,该村海拔约3300米,有农户45户,人口大约为200人,上下学学生有中小学生20人左右,是一个以藏族为主的一个村落。1桥、2桥在雨季水流量较大,而且地势低洼,存在很大的安全隐患。拟修建爱心第2桥处,其上游不远处现在有一座桥,但是在雨季发洪水时,拟修建爱心第2桥处是低洼地带,这里的村民无法向上游逃生,由于村民背后是大山,遇到洪水,只能从拟建的爱心第1桥处逃生。
说明:因为牦牛场村地处偏远,同一个村的村民户口分别在翠玉乡、红桥乡、永宁乡三个乡,属于翠玉乡较多,做资料就由翠玉乡统一做资料。

捐款人:

牦牛场村爱心1桥的捐款人为: 蔡雨彤5000元,蔡伊曼5000元,叶凤仪1万元,严一山1万元,蔡胜华1万元,高丽敬6000元,合计4.6万元;
牦牛场村爱心2桥的捐款人为:徐伟鸿2万元,罗煜恒和胡心钰1万元,李伟杰5000元,莫颖婷5000元,光照抄经义卖款6000元,合计4.6万元;
顶部
信天谨游
管理员
Rank: 9Rank: 9Rank: 9


UID 5
精华 0
积分 0
帖子 29487
阅读权限 200
注册 2007-4-3
状态 离线
发表于 2022-3-3 13:01  资料 文集 短消息 
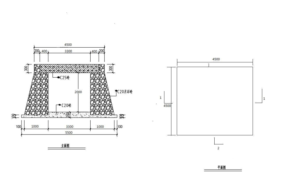
牦牛场村爱心1桥、2桥预算及图纸:
两座桥设计大小一样,预算相同。
每座桥的预算为:
石头:40方*180元=7200元
沙子:25方*260元=6500元
钢筋:22○的70根*140元=9800元
水泥:7.5吨*720元=5400元
水泥运费:800元
木板、木方、撑杆合计:2600元
人工:33*200元=6600元
挖机挖基础:2600元
运费:木板、钢筋:1200元
回填+护栏:3010元
合计:45710元(圆整46000元)
1桥、2桥圆整总计:92000元


小桥施工方式:
  桥墩为毛石混凝土
  桥板为钢筋混凝土
     施工图如下:


图片附件: 1111.jpg (2022-3-3 13:01, 71.89 K)

顶部
信天谨游
管理员
Rank: 9Rank: 9Rank: 9


UID 5
精华 0
积分 0
帖子 29487
阅读权限 200
注册 2007-4-3
状态 离线
发表于 2022-3-3 14:11  资料 文集 短消息 
预留1
顶部
信天谨游
管理员
Rank: 9Rank: 9Rank: 9


UID 5
精华 0
积分 0
帖子 29487
阅读权限 200
注册 2007-4-3
状态 离线
发表于 2022-3-3 14:11  资料 文集 短消息 
预留2.。
顶部
信天谨游
管理员
Rank: 9Rank: 9Rank: 9


UID 5
精华 0
积分 0
帖子 29487
阅读权限 200
注册 2007-4-3
状态 离线
发表于 2022-3-3 14:11  资料 文集 短消息 
预留3.。
顶部
信天谨游
管理员
Rank: 9Rank: 9Rank: 9


UID 5
精华 0
积分 0
帖子 29487
阅读权限 200
注册 2007-4-3
状态 离线
发表于 2022-3-3 15:04  资料 文集 短消息 
牦牛场的牦牛


图片附件: 11-1_副本.jpg (2022-3-3 15:04, 260.6 K)

顶部
信天谨游
管理员
Rank: 9Rank: 9Rank: 9


UID 5
精华 0
积分 0
帖子 29487
阅读权限 200
注册 2007-4-3
状态 离线
发表于 2022-3-3 15:05  资料 文集 短消息 
其中一座桥,现在是几根木头做的桥,遇到洪水,就无法过桥。


图片附件: 11_副本.jpg (2022-3-3 15:05, 231.5 K)



图片附件: 12_副本.jpg (2022-3-3 15:05, 250 K)



图片附件: 13_副本.jpg (2022-3-3 15:05, 218.97 K)



图片附件: 14_副本.jpg (2022-3-3 15:05, 268.65 K)

顶部
信天谨游
管理员
Rank: 9Rank: 9Rank: 9


UID 5
精华 0
积分 0
帖子 29487
阅读权限 200
注册 2007-4-3
状态 离线
发表于 2022-3-3 15:06  资料 文集 短消息 
2020年雨季洪水。


图片附件: 31_副本.jpg (2022-3-3 15:06, 231.1 K)



图片附件: 32_副本.jpg (2022-3-3 15:06, 193.71 K)



图片附件: 33_副本.jpg (2022-3-3 15:06, 123.69 K)



图片附件: 34_副本.jpg (2022-3-3 15:06, 108.79 K)

顶部
信天谨游
管理员
Rank: 9Rank: 9Rank: 9


UID 5
精华 0
积分 0
帖子 29487
阅读权限 200
注册 2007-4-3
状态 离线
发表于 2022-3-3 15:08  资料 文集 短消息 
这是计划修建的第2座桥的位置。


图片附件: 24_副本.jpg (2022-3-3 15:08, 306.36 K)



图片附件: 21_副本.jpg (2022-3-3 15:08, 306.03 K)



图片附件: 22_副本.jpg (2022-3-3 15:08, 286.05 K)



图片附件: 23_副本.jpg (2022-3-3 15:08, 186.41 K)

顶部
信天谨游
管理员
Rank: 9Rank: 9Rank: 9


UID 5
精华 0
积分 0
帖子 29487
阅读权限 200
注册 2007-4-3
状态 离线
发表于 2022-3-3 15:11  资料 文集 短消息 
村民背后是大山,另外三面,上面是上游(有一座桥),遇到洪水,无法向上游逃生,另外两面环河,在河上计划修建小桥。


图片附件: 25_副本.jpg (2022-3-3 15:11, 316.13 K)

顶部
 


当前时区 GMT+8, 现在时间是 2025-10-17 04:36
京ICP备07004120号

    本论坛支付平台由支付宝提供
携手打造安全诚信的交易社区 Powered by Discuz! 5.0.0  © 2001-2006 Comsenz Inc.
清除 Cookies - 联系我们 - 信天谨游 - Archiver